90㎡二居现代简约风格幸福城
发布时间:
2020年06月03日
小区:幸福城 面积:90㎡ 户型:二居 风格:现代简约风格
设计说明
此方案的风格倾向定位为现代简约风格。业主崇尚简洁明快的简约主义。简约风格的特色是将设计的元素、色彩、照明、原材料简化到最少的程度,但对色彩 、材料的质感要求很高。此方案合理的对空间进行了改造与功能划分。充分展现出简洁明快的空间。
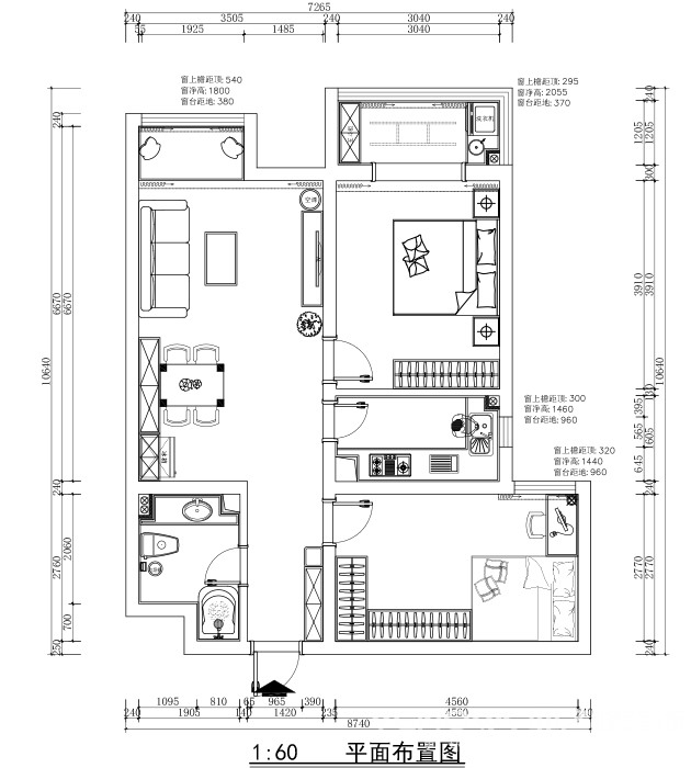
户型图

卧室


客厅


玄关





京公安网备11010502040911