135㎡三居现代简约风格中山公馆
发布时间:
2020年06月03日
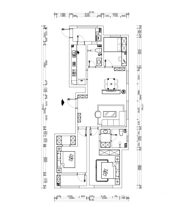
小区:中山公馆 面积:135㎡ 户型:三居 风格:现代简约风格
设计说明
此方案的风格倾向定位为简约风格。现代简约风格营造的是简单大气的氛围。其最突出强调的是设计的功能性和实用性。最大限度的使所有的家居设计陈列都已最简单的方式呈现,并取消了多余复杂的东西。从而使室内室外宽敞明亮、线条和色彩单一而又不缺乏趣味,营造一种空间感和艺术感。
户型图

卧室



客厅


餐厅


玄关





京公安网备11010502040911