180㎡平层其他小区
发布时间:
2019年06月22日
小区:其他小区 面积:180㎡ 户型:平层 风格:
设计说明
业主是一对中年夫妇,有一个二十多岁的儿子。这一对夫妇都是领导干部,喜欢中式风格,而且的已经购买了中式的家具。但是客户不想要太复杂的设计。女主人是一位朴实的好妈妈,男孩已经工作,只是在周末才回家。
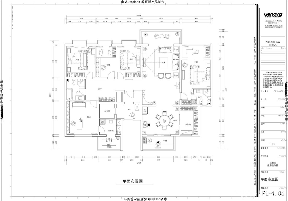
此户型的室内面积比较大,根据客户生活方式及个人需求,及业主的喜好对室内空间结构进行整合并重新规划,使每个独立空间更宽敞,更舒适,户型图 
玄关

书房

客厅



餐厅

卧室





京公安网备11010502040911