103㎡三居师大北区宿舍
发布时间:
2019年06月09日
小区:师大北区宿舍 面积:103㎡ 户型:三居 风格:
设计说明
装修热线:0791-86296016,本案的女主人对美式情有独钟,但又想简单一点,最后选择了简美风格,客餐厅没有反复的空间布局,每处都格外的干净利落,而且现代实用。无论是房顶的吊灯,还是脚下的地板,没有琐碎多余的设计,表面光滑柔和;卧室满足了女主人的少女心,以粉色为主色调规划整体,整体让人感觉温暖而舒适。
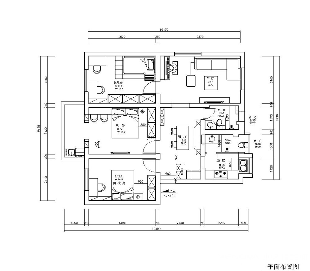
户型图

卧室

客厅



餐厅





京公安网备11010502040911