157㎡四居新中式风格康河丽景
发布时间:
2019年03月28日
小区:康河丽景 面积:157㎡ 户型:四居 风格:新中式风格
设计说明
成都业之峰装饰设计案例:新中式是一种既继承了中国古典装饰的基本手法,又融合了现代简约的几何图案及装饰的设计风格,达到了新旧之间的深层次的完美碰撞。
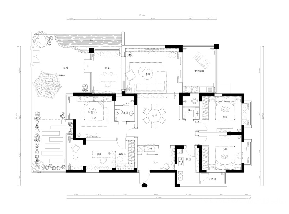
户型图

客厅


餐厅

书房

成都业之峰装饰设计案例:新中式是一种既继承了中国古典装饰的基本手法,又融合了现代简约的几何图案及装饰的设计风格,达到了新旧之间的深层次的完美碰撞。




