245㎡平层现代简约风格中海九号公馆
发布时间:
2019年03月28日
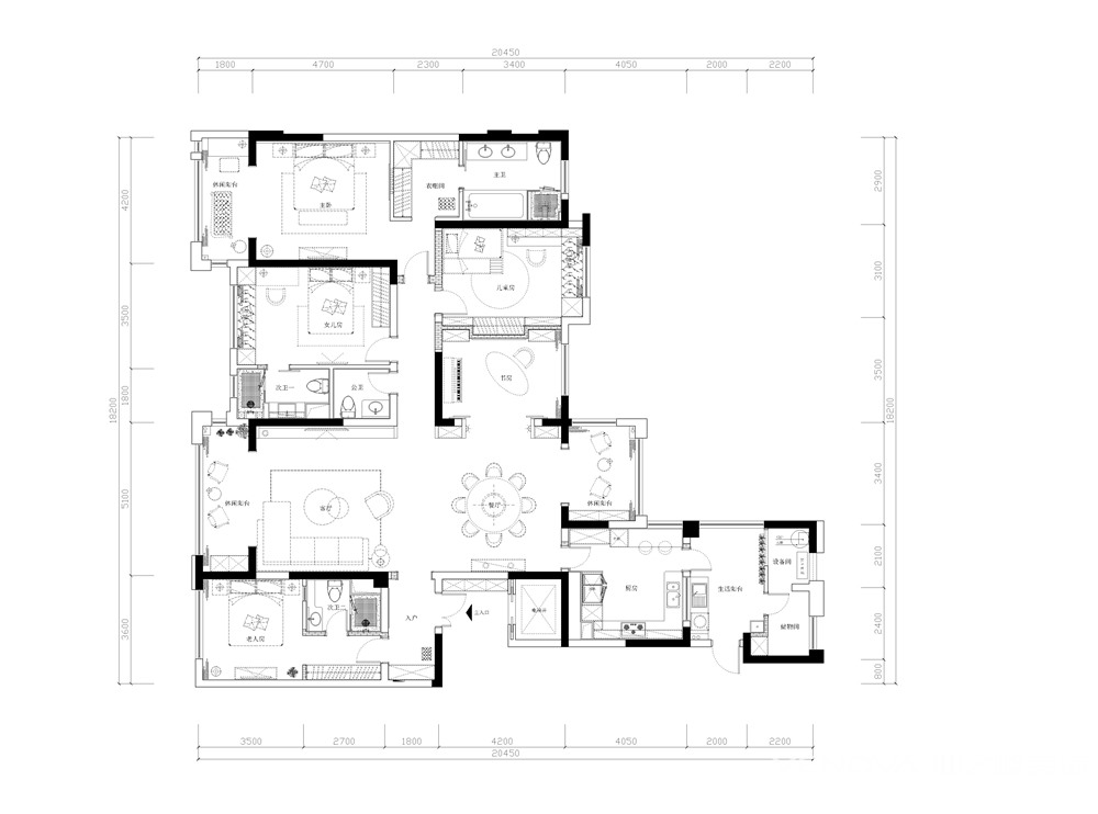
小区:中海九号公馆 面积:245㎡ 户型:平层 风格:现代简约风格
设计说明
成都业之峰装饰设计案例:极具设计感的现代空间,材料运用上使用了天然木皮,原木散发的质朴结合石材的自然纹理、搭以香槟色的柜体和墙板。传达出室内外的平衡共生,希望在纯净空间里,让居住者从视觉、嗅觉、听觉、味觉与触觉的感知中放松身心。
户型图

餐厅

客厅


书房

卧室





京公安网备11010502040911