167㎡四居现代简约风格恒天国际城
发布时间:
2018年08月22日
小区:恒天国际城 面积:167㎡ 户型:四居 风格:现代简约风格
设计说明
通过家具、吊顶、地面材料、陈列品甚至光线的变化来表达不同功能空间的划分,而且这种划分又随着不同的时间段表现出灵活性、兼容性和流动性。在材料之间的关系交接上,现代简约设计需要通过特殊的处理手法以及精细的施工工艺来达到要求。其次,现代风格的色彩设计受现代绘画流派思潮影响很大。通过强调原色之间的对比协调来追求一种具有普遍意义的永恒的艺术主题。装饰画、织物的选择对于整个色彩效果也起到点明主题的作用。
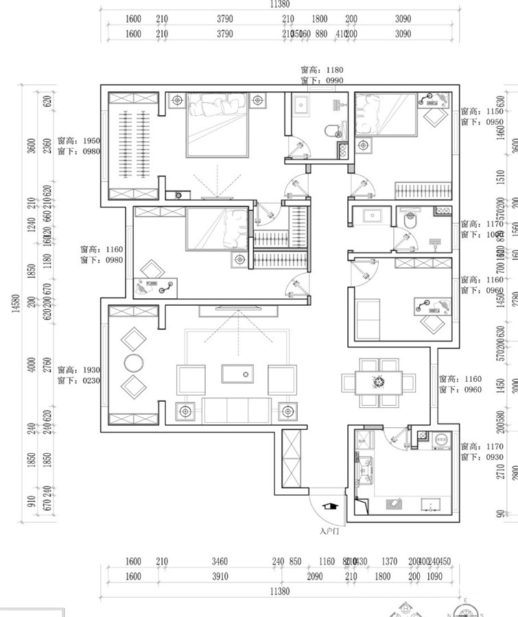
户型图

卧室

客厅


玄关

餐厅





京公安网备11010502040911