129㎡三居现代简约风格红树湾
发布时间:
2018年08月22日
小区:红树湾 面积:129㎡ 户型:三居 风格:现代简约风格
设计说明
现代简约风格主要是在建筑上提倡简约,将设计的元素、色彩、照明、原材料简化到最少的程度,但对色彩、材料的质感要求很高。同时强调空间的功能性,反对多余装饰。现代简约风格以简洁的视觉效果营造出时尚前卫的感觉,满足人们对生活品位和身体健康的需求,体现出合理节约的科学消费观,反映出当代社会摆脱繁琐、复杂、追求简单和自然的心理。
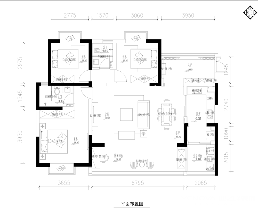
户型图

卧室

餐厅

客厅






京公安网备11010502040911