210㎡四居新中式风格南湖国际
发布时间:
2018年08月21日
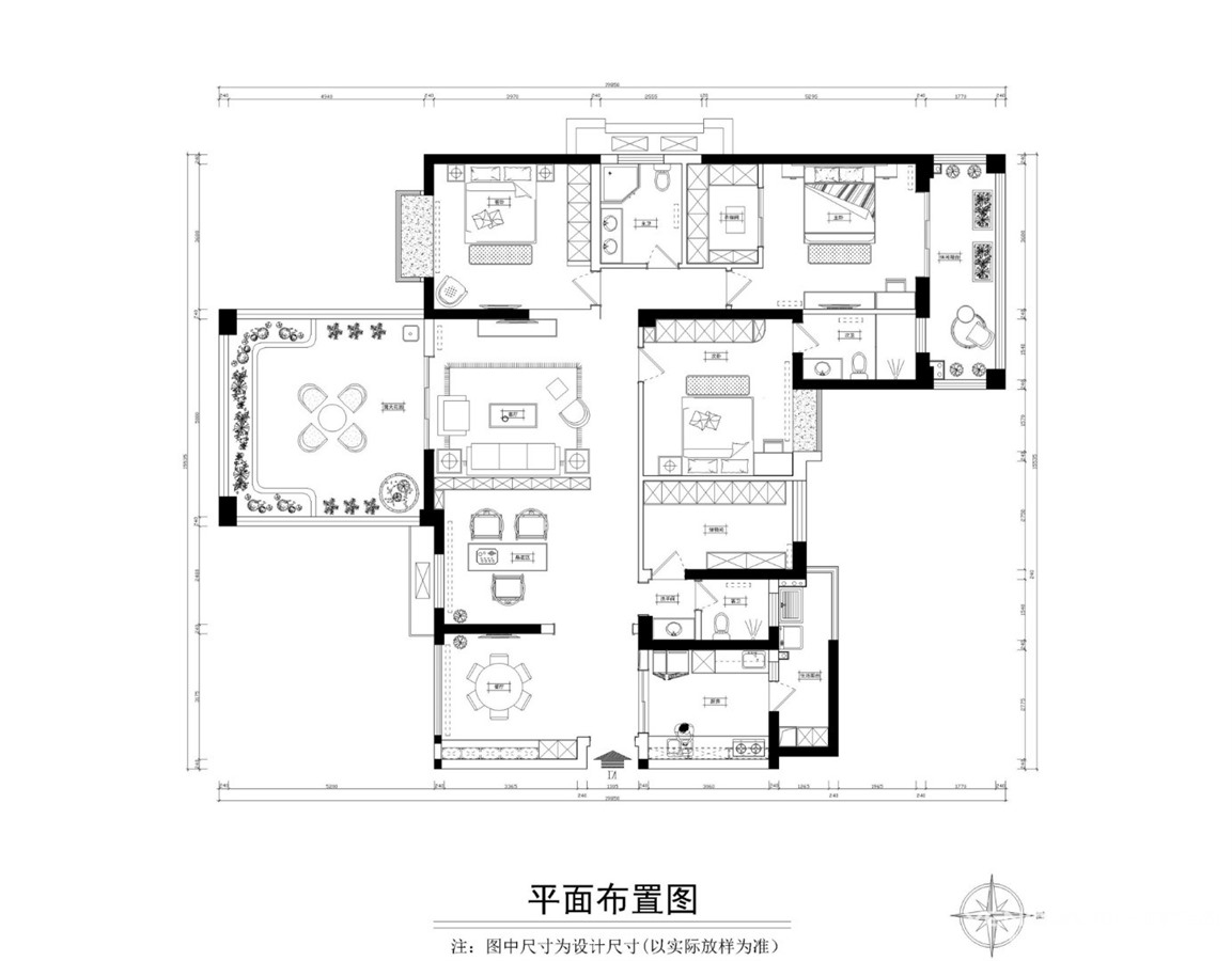
小区:南湖国际 面积:210㎡ 户型:四居 风格:新中式风格
设计说明
中式装修风格与其它西方、东南亚等装修风格也有很大不同,首先所营造的文化氛围是不同的,每一种装修风格都有其特定的文化背景作为支撑,以此来传递特定文化氛围中人们的生活追求,那么新中式古典主义风格是以中国传统古典文化作为背景的,营造的是极富中国浪漫情调的生活空间,红木、青花瓷、紫砂茶壶以及一些红木工艺品等都体现了浓郁的东方之美,这正是新中式古典主义风格与其它风格所不同的地方。这种极简主义的风格渗透了东方华夏几千年的文明,因此不管是中国人还是外国人都非常的喜欢这种新中式装修风格,它不仅永不过时,而且时间愈久愈散发出迷人的东方魅力。
户型图

餐厅
卧室
客厅





京公安网备11010502040911