248㎡别墅现代简约风格阳光城 半山悦
发布时间:
2018年08月21日
小区:阳光城 半山悦 面积:248㎡ 户型:别墅 风格:现代简约风格
设计说明
成都业之峰别墅装修案例,本户型属于大户型,对象家庭富裕,家中夫妻两边的父母以及两个孩子,需要提供一个舒适温馨享受的环境,以及供孩子玩耍的空间。房间的室内以简约为主,但处处透露出家的温馨。
本设计方案采用了现代轻奢风格,整体风格优美大气;
在本方案中现代轻奢风格需要的感觉被设计师用轻巧的手法宛若天成地完美体现了出来。
白色与奶灰色相得益彰,大理石与布艺的混合使得整个室内空间兼并了时尚的氛围和家的温馨,灯光让室内空间越发光彩却显不伶俐。
恰到好处的空间分配让整体空间繁华而不显拥挤,户型本身所具备的良好采光被尽可能的发掘;整个房屋兼具了私密性与娱乐性,设计师所采用的现代轻奢风格让主卧的氛围更与主人所切合,石材的严肃和墙面的材料所具有的温馨在房间里完美的平衡,软装的加入使得空间更有韵味。
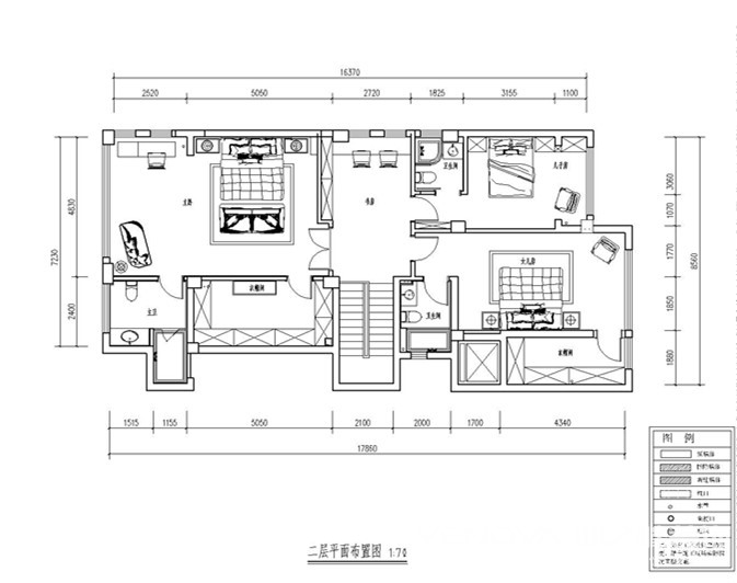
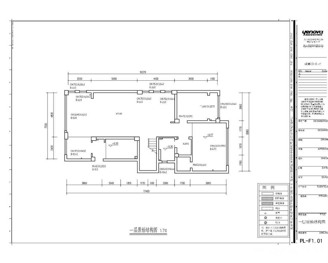
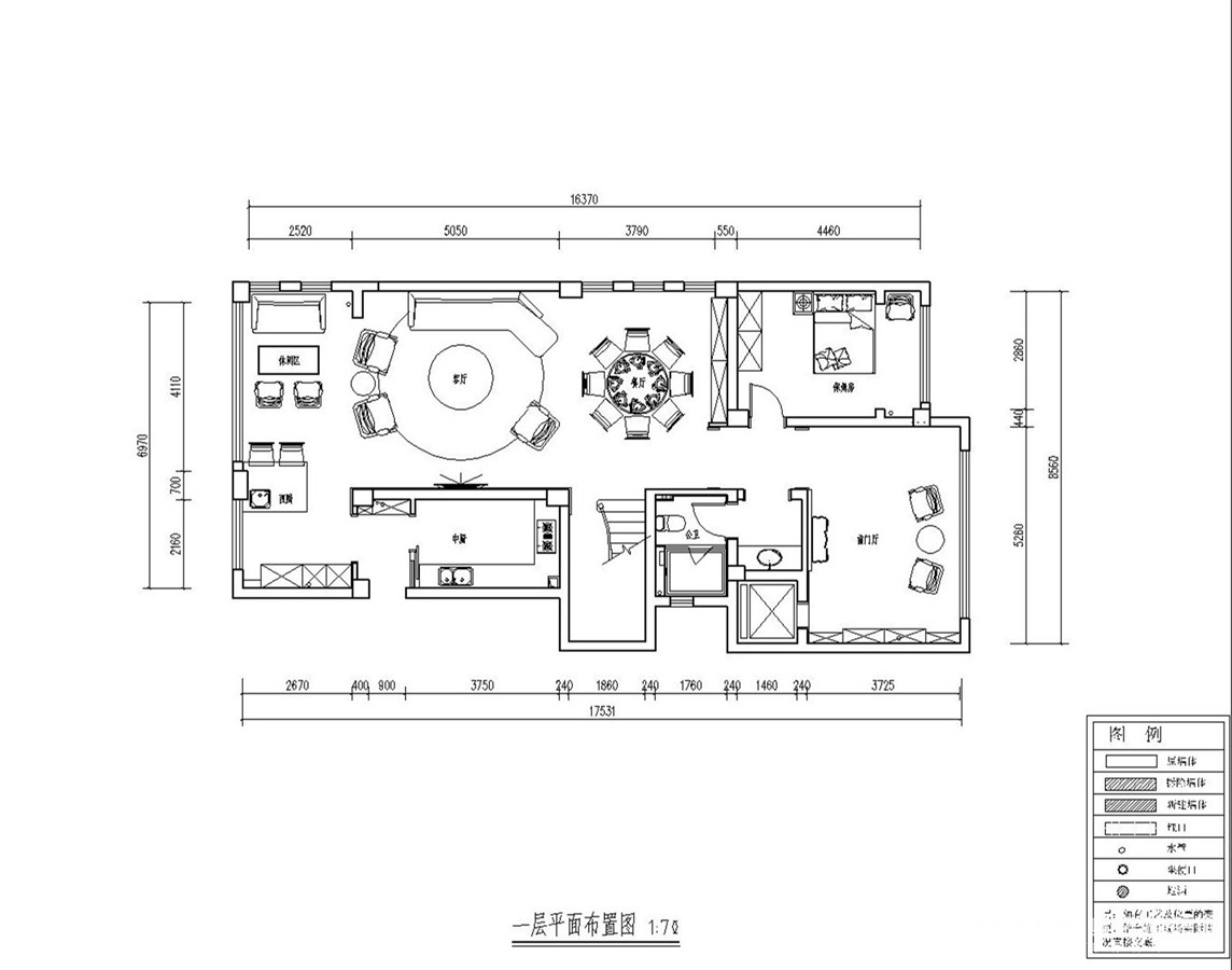
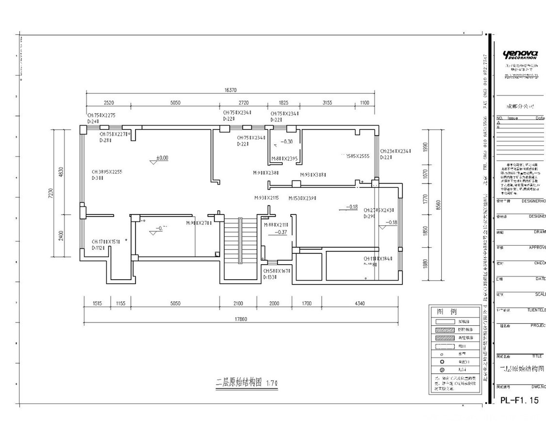
户型图

客厅






玄关

卧室

儿童房





京公安网备11010502040911