143㎡四居新中式风格龙湖紫宸
发布时间:
2018年03月09日
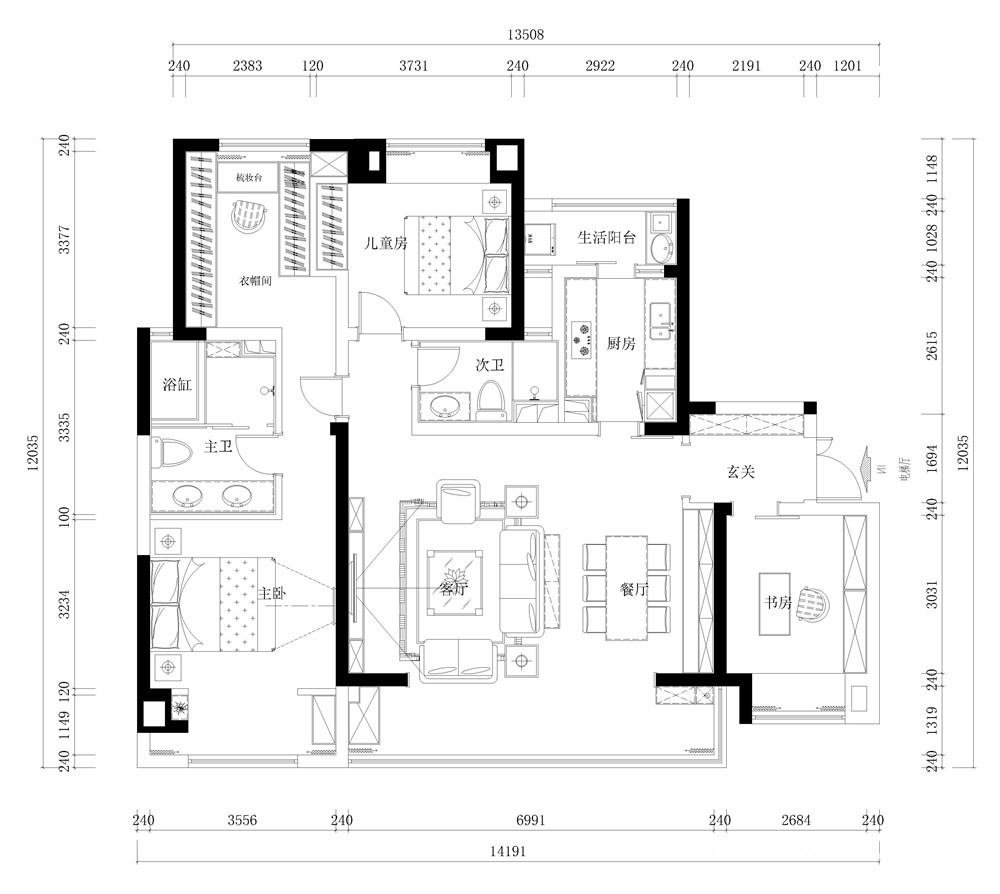
小区:龙湖紫宸 面积:143㎡ 户型:四居 风格:新中式风格
设计说明
成都业之峰装饰设计案例:传统元素与现代设计的完美融合,让中国传统文化在现代家居中焕发新的色彩。“新中式”风格是中国传统文化意义在当前时代背景下的演绎。本案的“中式”元素主要体现在家具与装饰搭配上。空间整体色调是灰、白两色,不似一般新中式风格偏爱较深木色来打造东方的含蓄内敛,而是将具有特色的中国传统元素融入到细节设计之中,例如充满东方韵味的家具,以及带有中国传统造型的线条,以及最能代表中国传统文化的陶瓷装饰品,每一处细节的处理都保留着中式风格的独有韵味,却又将其融入到较为现代的整体设计之中,是为清新时尚的“新中式”风格设计案例。
户型图

客厅



餐厅

卧室

书房





京公安网备11010502040911