89㎡三居北欧风格中铁马家公馆
发布时间:
2018年03月09日
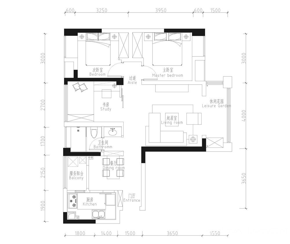
小区:中铁马家公馆 面积:89㎡ 户型:三居 风格:北欧风格
设计说明
成都业之峰装饰设计案例:由于业主小三口之家,所以保留了原本套三的一个户型,配了儿童房和书房。在空间结构上配套更为完善,使用起来也更有品质感。在装饰手法上采用了大块面概念体现,摈弃了很多小细节,使房间看上去更大气,宽敞。
户型图

客厅




餐厅

楼梯

休闲区

卧室





京公安网备11010502040911