151㎡二居新中式风格北大资源颐和翡翠府
发布时间:
2018年03月09日
小区:北大资源颐和翡翠府 面积:151㎡ 户型:二居 风格:新中式风格
设计说明
成都业之峰装饰设计案例:现代人的学习工作都讲求快捷、高效,于是在生活娱乐时就希望把脚步放慢,回归到轻快放松的环境中。新中式风格的室内设计古朴典雅,能反应出强烈的民族文化特征,让人一看就容易理解其文化内涵,特别是对中国人,更是有一种亲和力。只有既能体现中国传统神韵,又具备现代感的设计,才能是真正的现代中式风格。
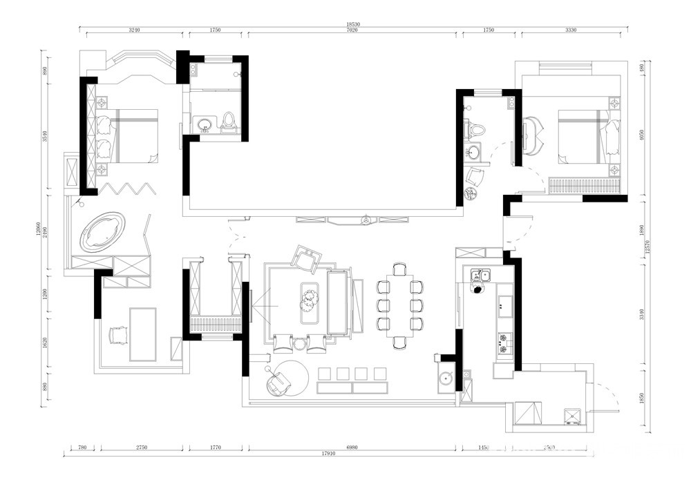
户型图

客厅


卧室

卫生间





京公安网备11010502040911