140㎡平层龙湖香醍国际社区
发布时间:
2018年01月24日
小区:龙湖香醍国际社区 面积:140㎡ 户型:平层 风格:
设计说明
美式轻奢
代表着自由与贵气
低调奢华
进取与传统
以高品质、设计感、舒适、简约为特点
整个空间以灰绿色为基调
灰绿色的内敛、朦胧、低调
烘托出软装的精致和质感
赋予了高贵的气质
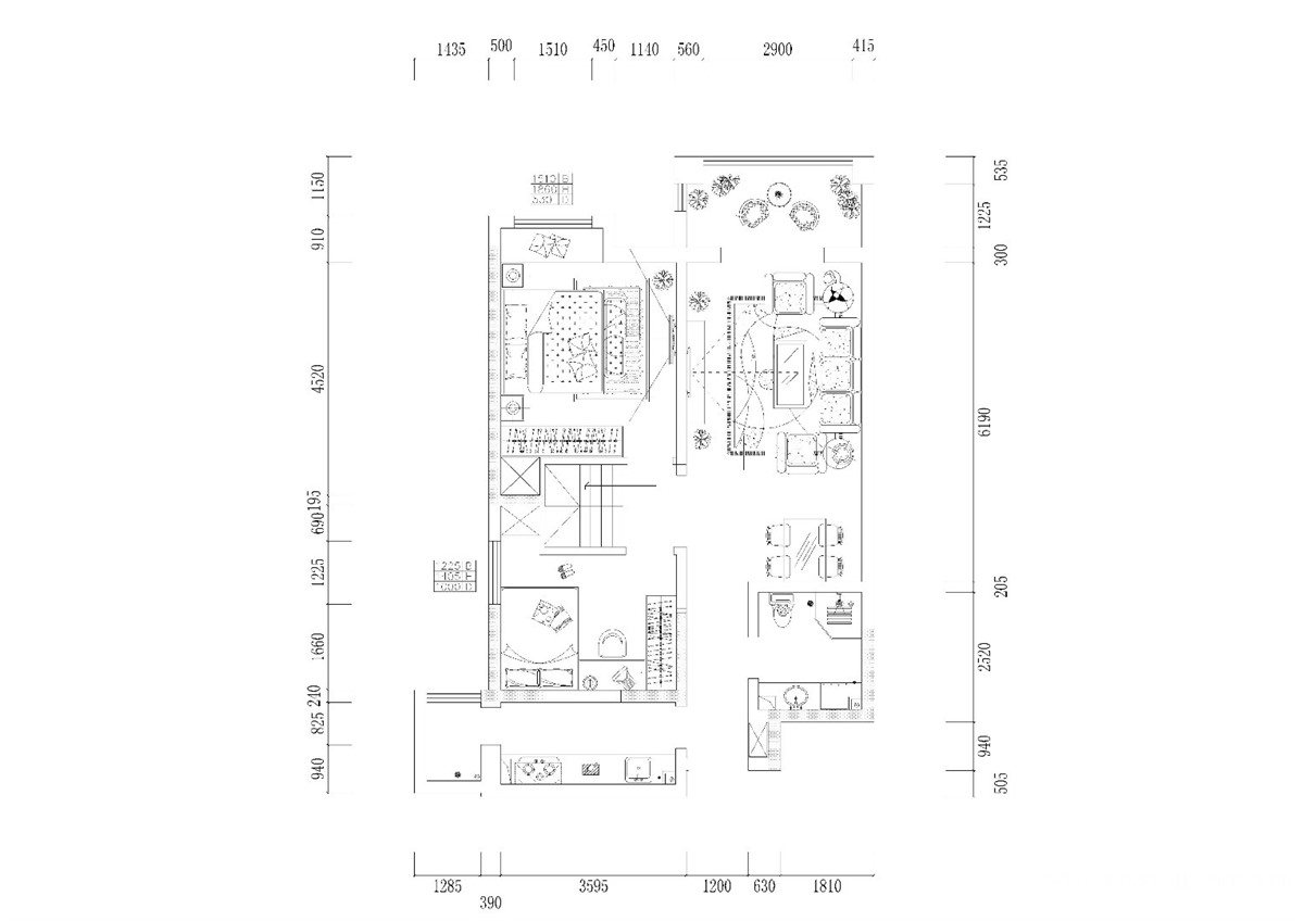
户型图

客厅







书房


楼梯

美式轻奢
代表着自由与贵气
低调奢华
进取与传统
以高品质、设计感、舒适、简约为特点
整个空间以灰绿色为基调
灰绿色的内敛、朦胧、低调
烘托出软装的精致和质感
赋予了高贵的气质










