126㎡平层景泰铭苑
发布时间:
2018年01月23日
小区:景泰铭苑 面积:126㎡ 户型:平层 风格:
设计说明
每一个空间都承载着太多,而亲情和爱情便是这之中的主旋律。新家的开启就像一部电影的上映,而设计就像是一次导演的过程。让情绪去表达,让空间去说话,让愿望去实现,在这个小的天地里,我们期待着美好的发生,让承载更具喜悦感!
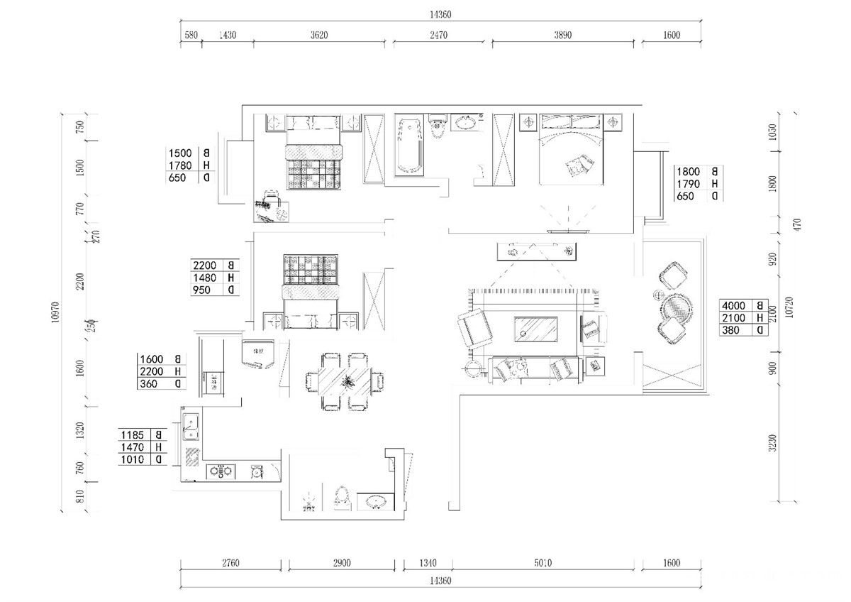
本案是一套三居室户型,南北通透,基本格局较为合理。分析户型后,我们对功能进行了重新的优化。整体风格上,定位现代美式,色彩以柔和的颜色为主,意在营造出温馨的居家环境。电视背景面和沙发背景面则采用了墙板的形式,对称的同时通过板面构造和墙纸的变化制造差异,主次之分,也能更好的强化中心。
户型图

客厅




餐厅






京公安网备11010502040911