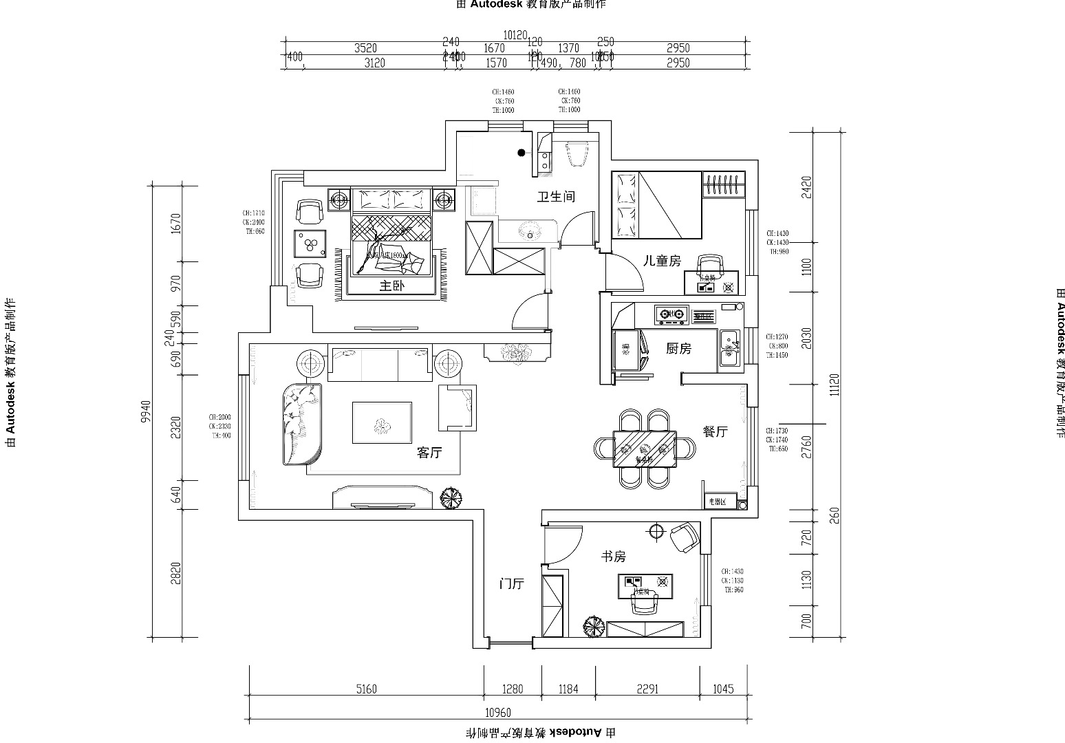
127㎡三居保利花园
发布时间:
2018年01月19日
小区:保利花园 面积:127㎡ 户型:三居 风格:
设计说明
不加过多修饰与约束的美式风格,本方案散发出迷人的休闲式浪漫,既有着欧式风格的华丽与贵气,又剔除了更多羁绊,同时又能寻找文化根基的新的怀旧,贵气而不失自在与随意。简美更是以功能性为优先考虑,木质家具搭配一株绿色的植物,传递着简洁、舒适的气息,在淡黄色光线的映衬下,呈现出雅致浪漫的韵味。明亮的光线从宽大的窗户照进,让客厅空间显得宽敞大气。
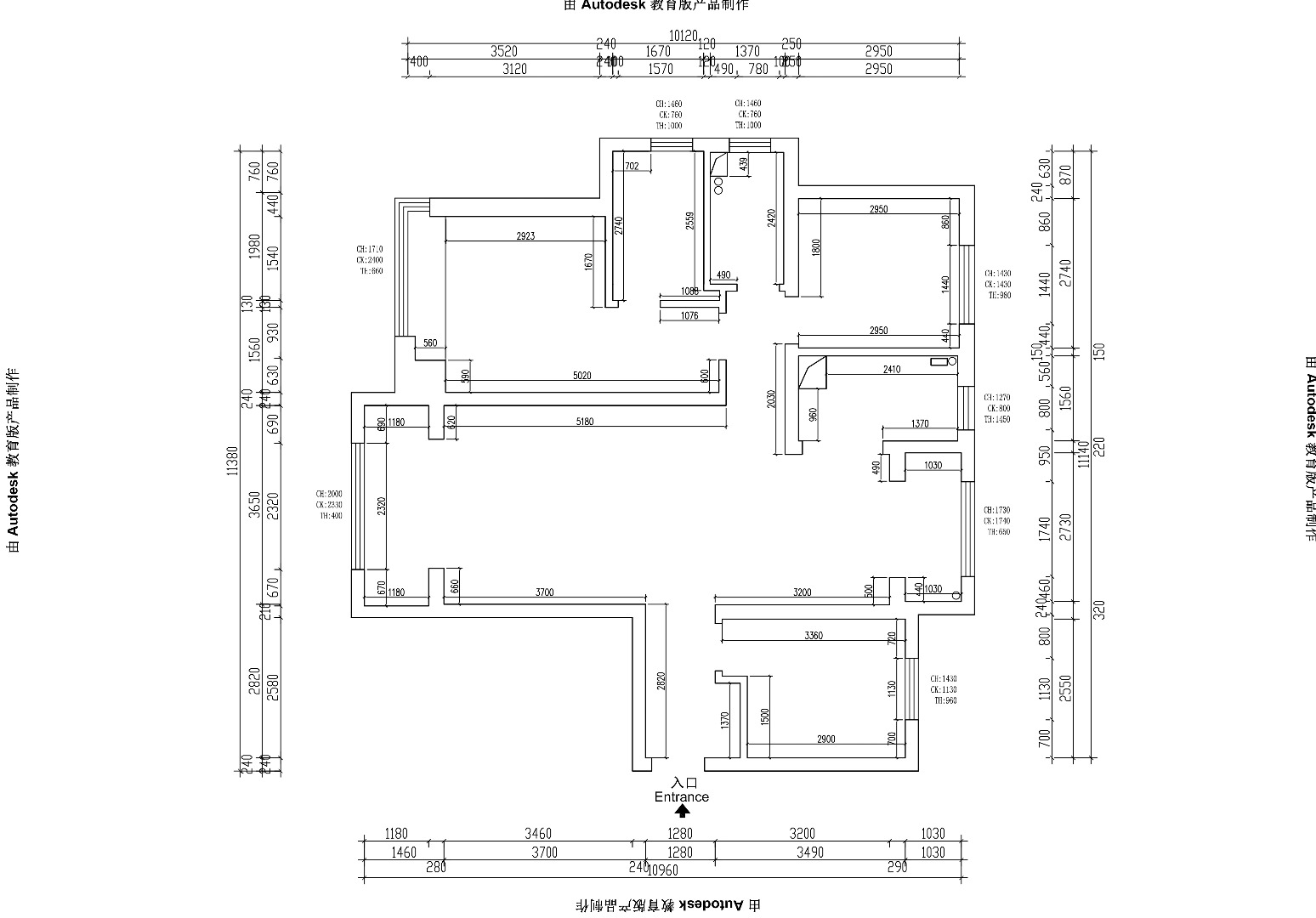
户型图

客厅





餐厅

厨房

卫生间

书房

卧室





京公安网备11010502040911