95㎡二居天泰世纪嘉园
发布时间:
2017年10月21日
小区:天泰世纪嘉园 面积:95㎡ 户型:二居 风格:
设计说明
以简洁明快的设计风格为主调,简洁和实用是现代简约风格的基本特点。本案简约风格不仅反映了居室的实用性,而且还体现了现代社会生活的精致与个性,也符合业主的生活品味。综合考虑,从总体布局方面上尽量满足业主生活得需求。适度的装饰设计家居不缺乏时代气息,使人在空间得到精神和身体的放松
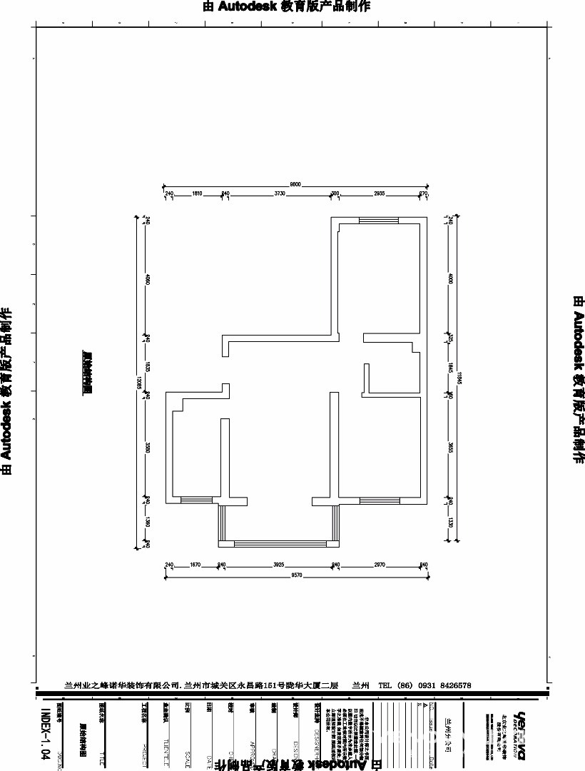
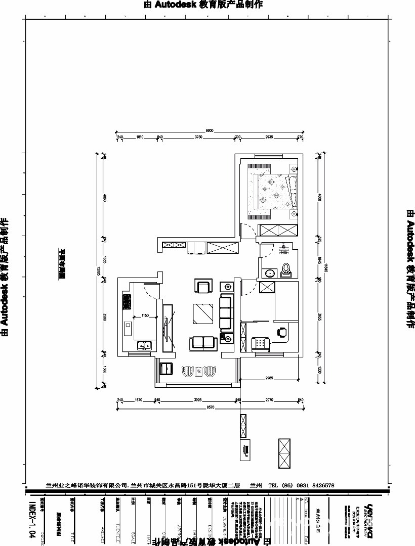
户型图

客厅




儿童房

卧室





京公安网备11010502040911