164㎡四居现代简约风格雁乐家苑
发布时间:
2017年10月21日
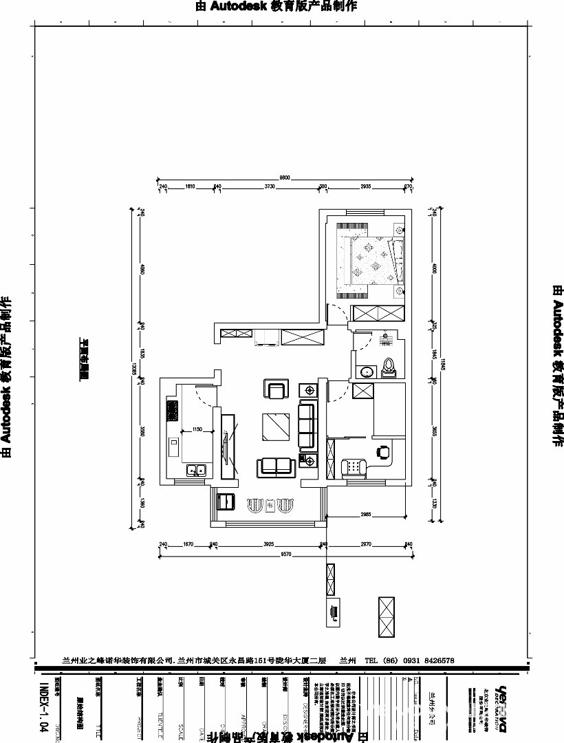
小区:雁乐家苑 面积:164㎡ 户型:四居 风格:现代简约风格
设计说明
本案业主所追求的现代风格,深沉里显露尊贵、典雅中渗透豪华。恰巧这种表现完整的体现出居住人追求品质、典雅生活。且本案设计的最大的亮点在于门厅、餐厅、和阴台的结构改造。由于阴台面积较大,造成使用空间的浪费, 所以利用阴台的面积,把厨房进行结构改造。两卫改为一卫,增加了一个衣帽间,既增加了客户对品质生活的需求,同时又增加了储物空间,使业主对家的需求变得更加完美。
户型图

客厅




卧室






京公安网备11010502040911