320㎡平层即墨紫园
发布时间:
2017年07月19日
小区:即墨紫园 面积:320㎡ 户型:平层 风格:
设计说明
美式风格在向我们诠释自由、随意的不羁生活方式,没有太多造作的修饰语约束,在不经意间就成就了另外一种休闲式的浪漫。它有着欧罗巴的奢侈与贵气,但又结合了美洲大陆这块水土的不羁,这样结合的结果是剔除了许多羁绊,但又能找寻文化根基的新的怀旧、贵气加大气而又不失自在与随意的风格。美式家居风格的这些元素也正好迎合了时下的文化资产者对生活方式的需求,即:有文化感、有贵气感,还不能缺乏自在感与情调感。
客厅作为待客区域,一般要求简洁明快,同时装修较其它空间要更明快光鲜,通常使用大量的石材和木饰面装饰;美国人喜欢有历史感的东西,这不仅反映在软装摆件上对仿古艺术品的喜爱,同时也反映在装修上对各种仿古墙地砖、石材的偏爱和对各种仿旧工艺的追求上。电视背景墙采用雪花白大理石参照壁炉的外观来进行设计造型,让整个空间附有独特的设计风格且不失美式的文化底蕴。墨绿色墙面处理让空间上延伸感在色彩、材质的对比下更加凸显。顶面运用简约而富有层次感的吊顶搭配黑色吊灯在纵向空间感的表达上更加有力。 总体而言,美式风格的客厅是宽敞而富有历史气息的。
主卧作为主人的主要私密空间,考虑功能性和实用舒适性,沿用美式房屋结构进行吊顶设计,让整个空间的层高达到一个舒适的临界点,弧形垭口更加表现主人在向往的生活的自由,也鲜明的表达出了现代美式想要诠释的内在情感。
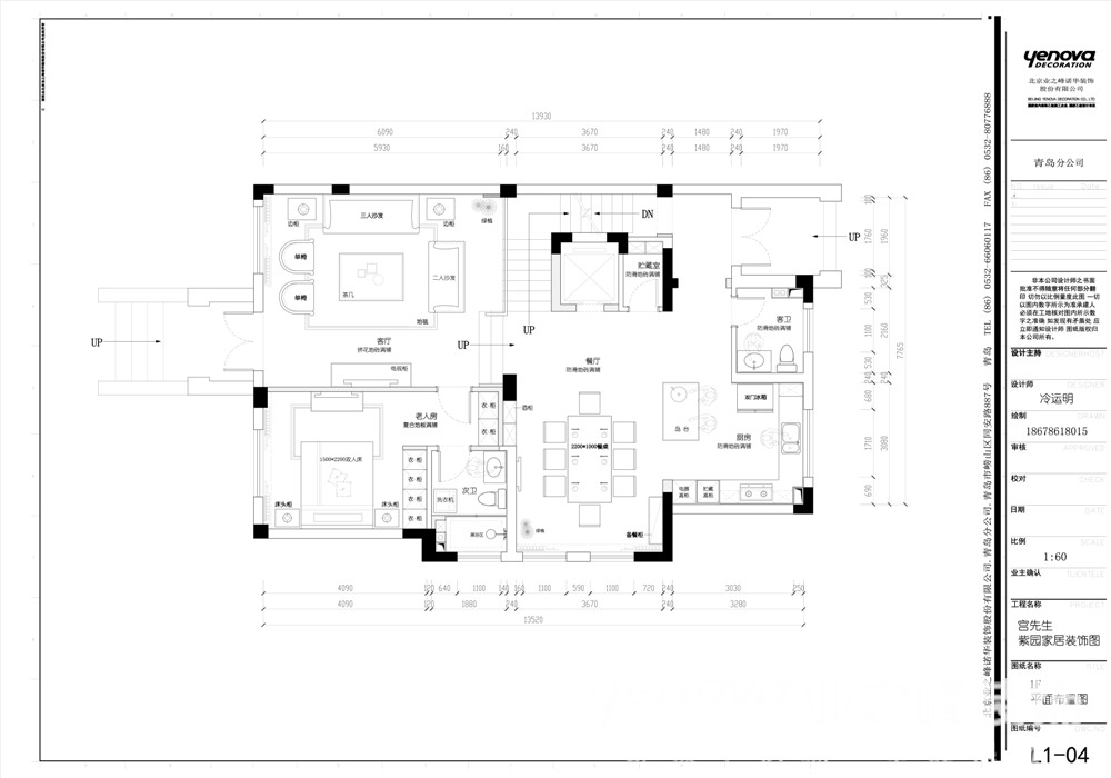
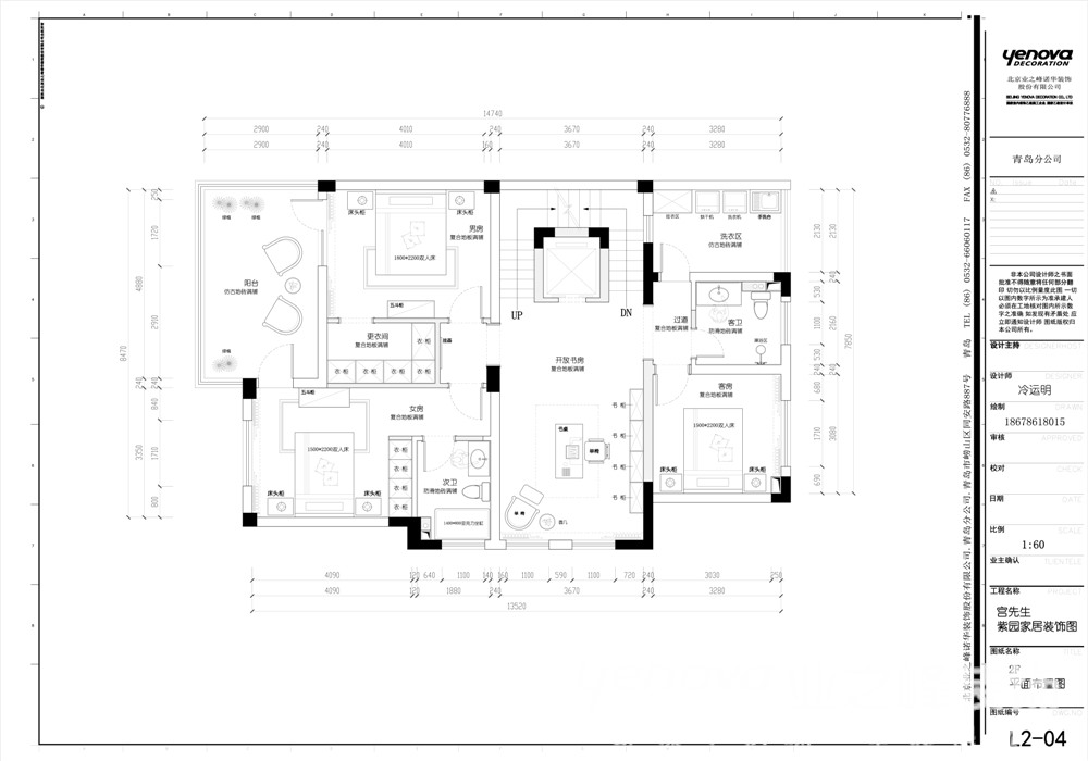
户型图

玄关

客厅









京公安网备11010502040911