95㎡二居现代简约风格华侨城
发布时间:
2017年03月12日
小区:华侨城 面积:95㎡ 户型:二居 风格:现代简约风格
设计说明
华侨城95㎡-现代简约风格
设计单位:武汉业之峰诺华装饰有限公司
主持设计:刘帅
面积:95平方米
设计用材:富得利橡木地板,简一大理石瓷砖、阿卡蒂亚壁纸、 实木墙板,软包等。
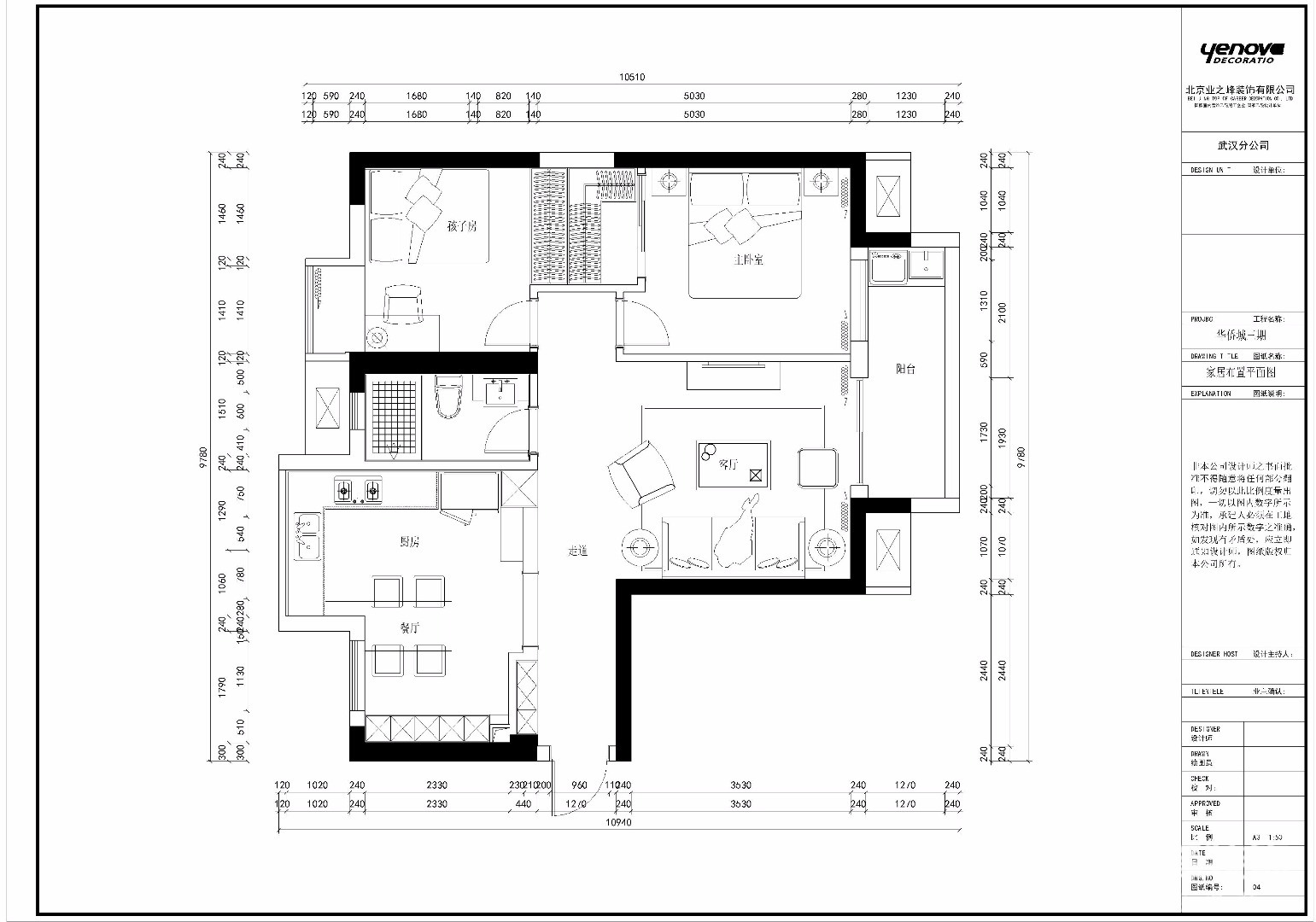
本案为华侨城95平方米的居住单位,居住者是一对年轻的夫妻,喜欢清爽简单,以浅色调为主,开放式厨房,设计师通过几次的见面沟通才确定出本案。户型方正,区域划分明显,具有较强的功能分区意识,朝向舒适,活动方便,区域宽敞。户型比例格局协调,设计区域较广。但是厨房使用面积较为拥挤,难以满足正常的生活需求。入户走道采光不足,没有很好的采光区域。卫生间狭长,在使用上不能得到最大化的利用,入户正对卧室门,隐私性较差。设计师将将餐厅、餐厅阳台、厨房全部合并成一个区域,使用便捷、方便、大气。卫生间的干湿分区改为干湿一体,适当的扩大了卫生间的区域,能更好的利用空间满足正常的功能需求。本案属于现代简约风格。现代风格是比较流行的一种风格,追求时尚与潮流,非常注重居室空间的布局与使用功能的完美结合。现代主义也称功能主义,是工业社会的产物,其最早的代表是建于德国魏玛的包豪斯学校。其主题是:要创造一个能使艺术家接受现代生产最省力的环境---机械的环境。这种技术美学的思想是本世纪室内装饰最大的革命。
户型图

客厅



卧室


餐厅





京公安网备11010502040911