88㎡三居现代简约风格楚天都市雅园
发布时间:
2017年03月12日
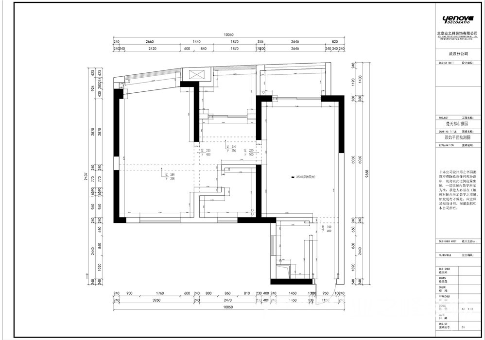
小区:楚天都市雅园 面积:88㎡ 户型:三居 风格:现代简约风格
设计说明
楚天都市雅园88.31㎡-现代简约风格
设计单位:武汉业之峰诺华装饰有限公司
主持设计:刘帅
时间:2017年2月20日
面积:88.31平方米
设计用材:富得利橡木地板、阿卡蒂亚壁纸、 实木墙板等。
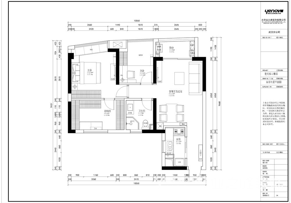
本案为楚天都市雅园88.31平方米的居住单位,业主为儿子考虑的婚房,考虑一个功能房能提供休闲娱乐的区域。闲暇时间可以提供学习,工作的区域。有较大的储物需求,需要一个衣帽间。比较喜欢简单一点的欧美风格。设计师根据客户的要求做了两套方案,通过几次的沟通,最终敲定本案。户型大结构偏斜,不方正。全房的承重墙较多。可改动的区域较小。客餐厅一体,动静分区明显。具有较强的功能分区意识,朝向舒适,活动方便,全房采光较好。卫生间太过狭窄,作为一家人的必需空间较为拥挤。房间空间略为紧凑。设计师根据客户的要求将两间卧室改为套间,增加一个大的衣帽间,增加储物空间。厨房合理的扩大,增加储物和功能的需求。本案属于欧式风格,是一种来自于欧罗巴洲的风格。主要有法式风格,意大利风格,西班牙风格,英式风格,地中海风格,北欧风格等几大流派。所谓风格,是一种长久以来随着文化的潮流形成的一种持续不断,内容统一,有强烈的独特性的文化潮流。欧式风格就是欧洲各国文化传统所表达的强烈的文化内涵。
户型图

卧室

餐厅

客厅







京公安网备11010502040911