150㎡三居简欧风格百瑞景
发布时间:
2017年03月12日
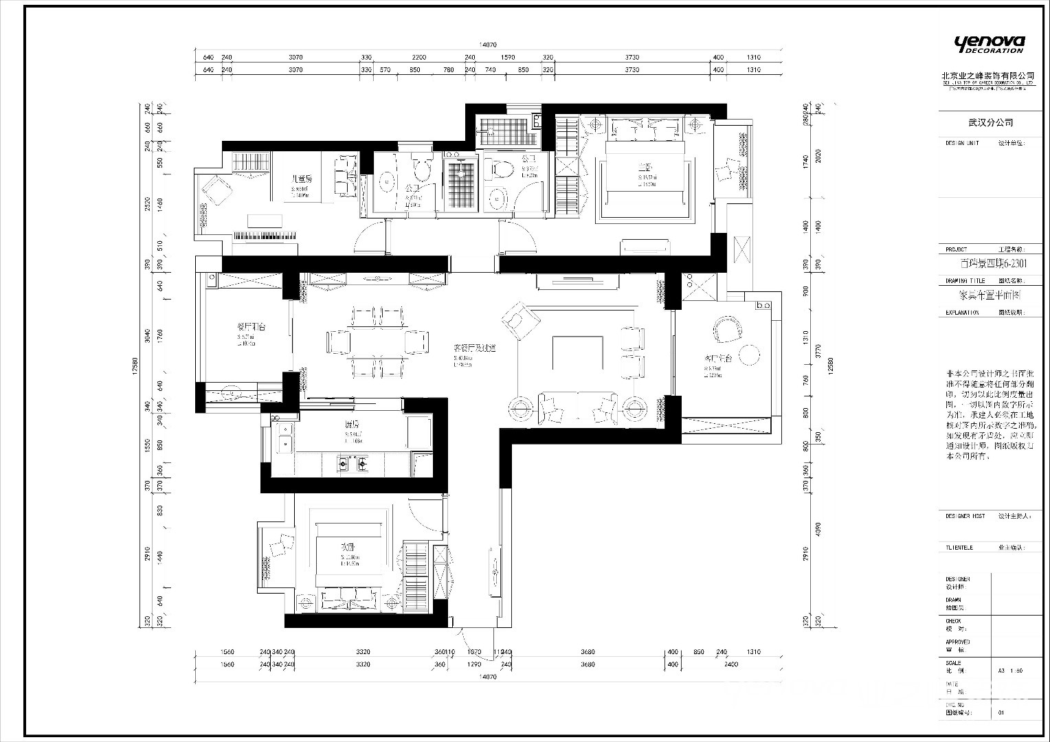
小区:百瑞景 面积:150㎡ 户型:三居 风格:简欧风格
设计说明
该户型为150平米,本室案设计风格为简欧风格,简单节俭却又不失大气。并充分的体现设计感。而且功能分区明确。
业主为教师。对生活的品质追求较高,精益求精。第一次与设计师沟通时提出对房子使用的功能要求。需要三间卧室。三间卧室的床头采用软包。为了充分的利用整个户型空间。
再次沟通时,设计师提出了自己的想法与业主进行深入的探讨,并在沟通的过程中进行了一些变动。设计师再同时也提供了一些参考的图片来供客户选择,在沟通的过程中确定了简欧的风格。最终确定了方案。
本方案在尽量不动原始结构上进行设计,划分出各个功能区域,增加空间的活动性,灵活性以及提高业主生活的品质,舒适度。客厅运用地砖与墙纸,造型整体电视柜,石膏线条在与客厅的设计完美融合中使得整个空间不复杂不拥挤整齐,对称。对于主卧与次卧设计使用实木地板,要让业主感觉回归自然的感觉,简单,安逸。背景使用软包与石膏线条相结合使整个空间完整归一。对于全部的装修风格,设计师设计整体,大方。并且没有浪费多余的空间,使空间看起来整齐划一。对于儿童房使用范围较小这一缺点,设计师将儿童房飘窗打掉,使得儿童房使用空间增加。
所有设计的手段,再颜色搭配上比较单一,却又不失大气。每一个小的细节都有设计师的灵魂所在。
客厅









京公安网备11010502040911