118㎡三居华城泊郡
发布时间:
2017年02月10日
小区:华城泊郡 面积:118㎡ 户型:三居 风格:
设计说明
中式风格是以宫廷建筑为代表的中国古典建筑的室内装饰艺术风格。在本案中,客厅部分增加装饰、盆景、精致的工艺品加以点缀,使传统家居多样化,以缓解风格所带来的重量。
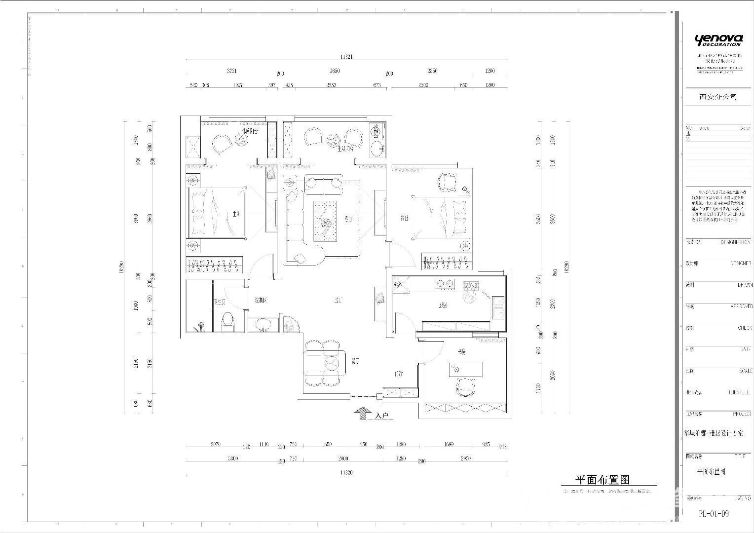
户型图

厨房

卧室

卫生间

玄关

客厅



餐厅

中式风格是以宫廷建筑为代表的中国古典建筑的室内装饰艺术风格。在本案中,客厅部分增加装饰、盆景、精致的工艺品加以点缀,使传统家居多样化,以缓解风格所带来的重量。








