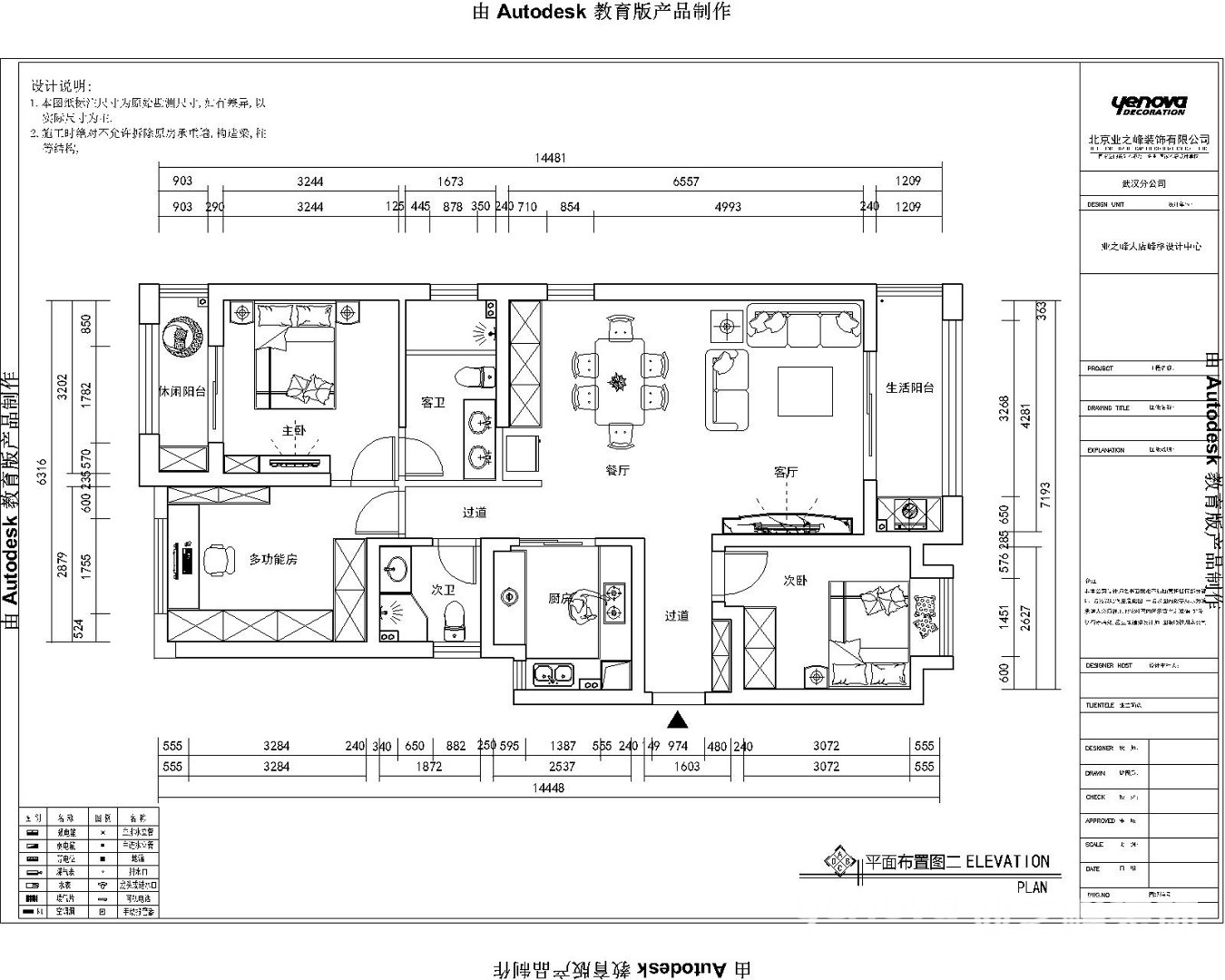
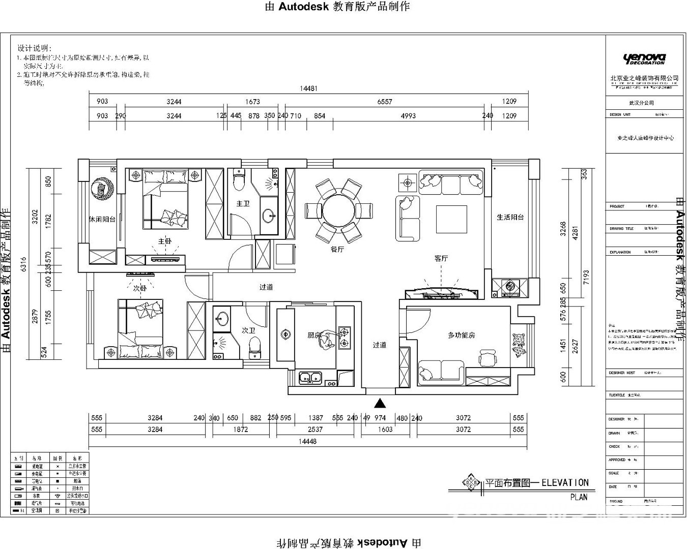
127㎡三居现代简约风格御才名仕
发布时间:
2017年01月07日
小区:御才名仕 面积:127㎡ 户型:三居 风格:现代简约风格
设计说明
这是127㎡户型的效果图,以现代简约,温馨为主,突破旧传统,重视空间组织,注重发挥结构构成本身的形式差,装饰简洁反对多余装饰,崇尚合理构成工艺,,就材料自身的质地和色彩的配置效果发展了非传统的以功能布局为依据的不对称的构图手法,强调设计与生活的必然联系。
区域的划分则体现在地面铺贴和吊顶上面,玄关处采用地面拼花铺贴与玄关处吊顶相呼应,自然而然地形成一个独立的玄关区域。客餐厅地面铺贴一体化,采用大砖和加工小砖镶嵌斜铺,整
客厅












京公安网备11010502040911