108㎡三居混搭风格招商江湾国际
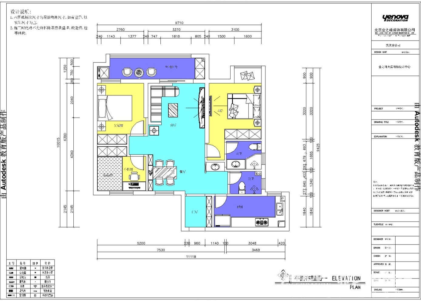
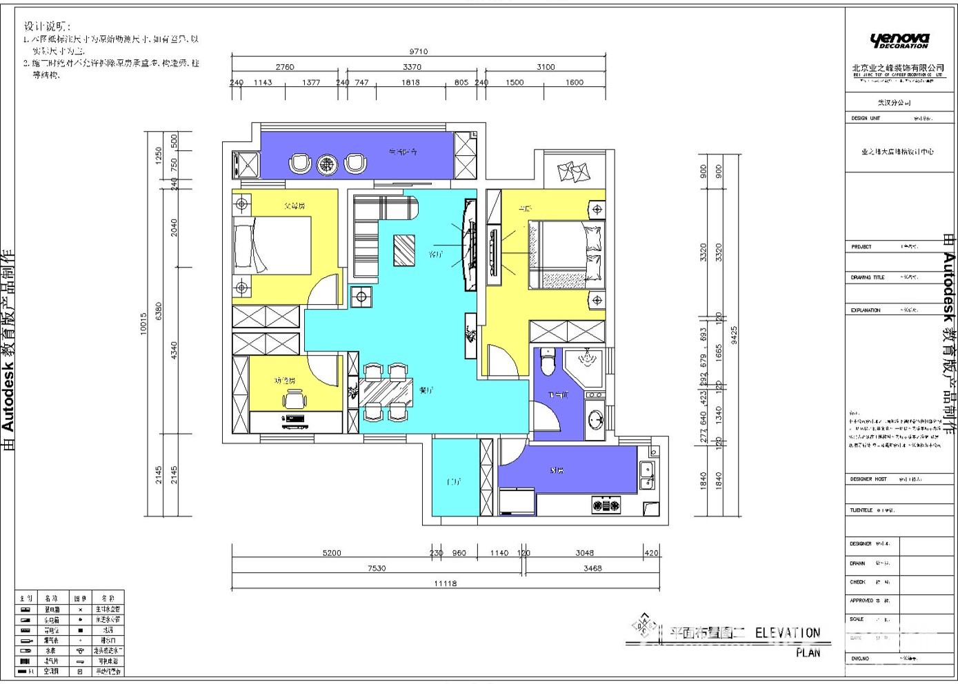
此户型为108平的三房格局,三室两厅一厨两卫。此户型有以下缺点;第一,进户门对着主卧门,从风水学上讲会直接影响到卧室主任的财运,健康运,事业运等。第二,进门浪费很严重,需要进行合理的规划。优点如下;第一,各区域功能分区明显,虽然买房面积不大,但得房率很高。第二,此户型南北通透,餐厅带窗户,客厅带阳台,且在一条线上,有利于空气的对流。
现如今,针对这个户型的优缺点,我们做了两个不同的方案以满足不同客户的需求。购买此户型的客户群体我们大致可以分为三代同堂和三口之家这两大客户群体。根据三口之家的需求,第一,我们把两个卫生间合并为一个大卫生间,对于三口之家不需要两个卫生间,当我们把两个卫生合并为一个大卫生间后,卫生间使用面积大大增加,而且主卧也增加了60多公分,空间变得更大气。第二,进门右手边砌一面墙并做一排鞋柜,把进门区域做成一个门厅的形式,既房间业主进门换鞋方便,也不至于让客人来家里一眼望穿,保证其隐私效果。第三,我们把第三个房间做成功能房的形式,这个功能房主要的作用是储藏和供主人办公有个单独的区域不被打扰。根据此方案,我们得出的半包预算是7万3,主材预算是15万8。根据三代同堂的需求,我们做以下修改,第一,考虑到人口多了后,我们必须保证有三个独立的房间各不打扰,第三个房间做成功能房的形式,为更好的利用房间的空间,以榻榻米代替床,同时把书桌,书柜,衣柜都和榻榻米做成一个整体,使其成为一个多功能房,具备睡觉,办公,休闲,储藏等功能。第二,为了更好的满足业主三代洗漱的功能,我们把客卫做成干湿分区的形式,这样里面有人洗澡不会影响外面的人刷牙洗脸互不打扰。根据8此方案,我们得出的半包预算是8万6,主材预算是17万4.













京公安网备11010502040911