126㎡三居简欧风格世纪江尚
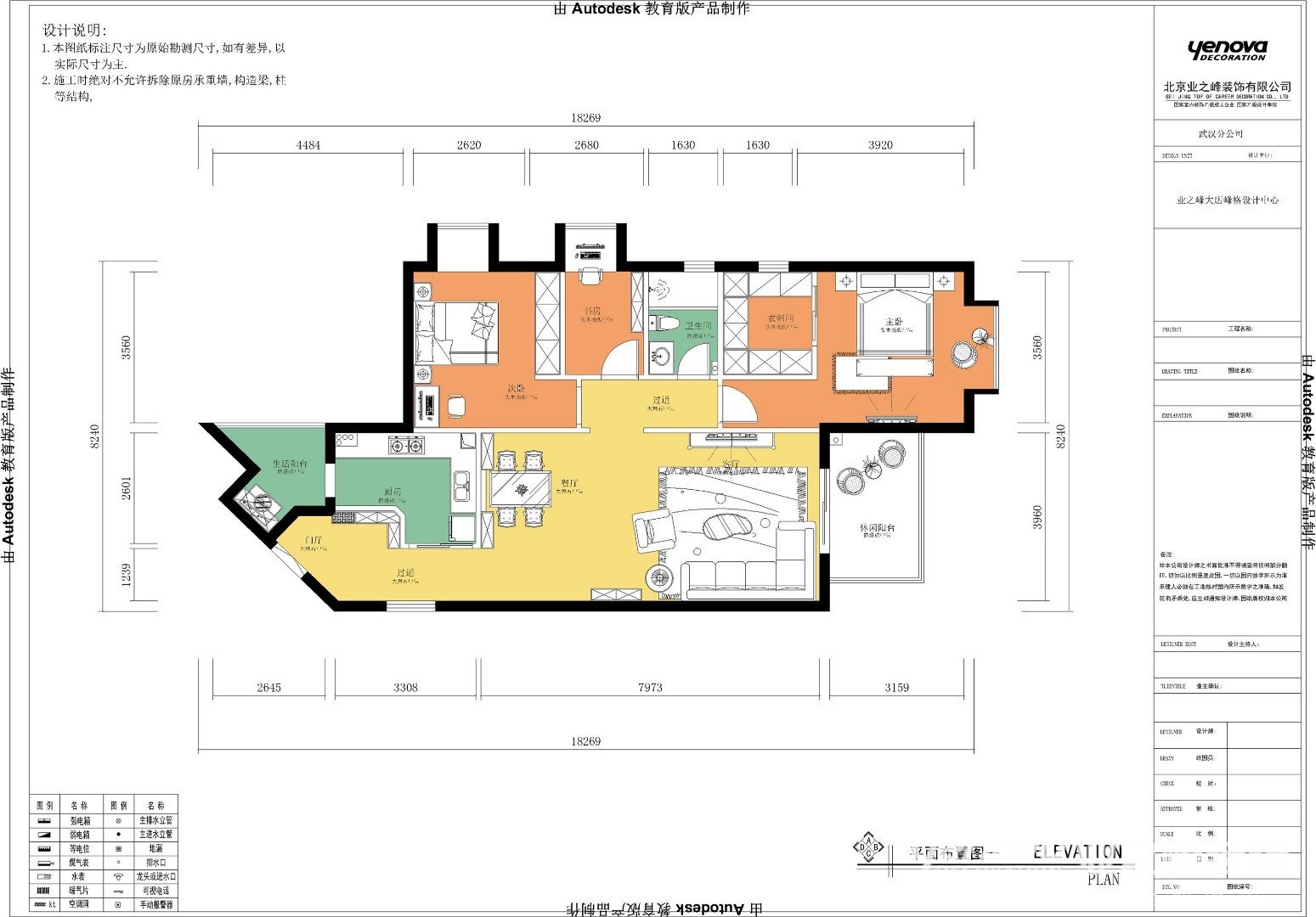
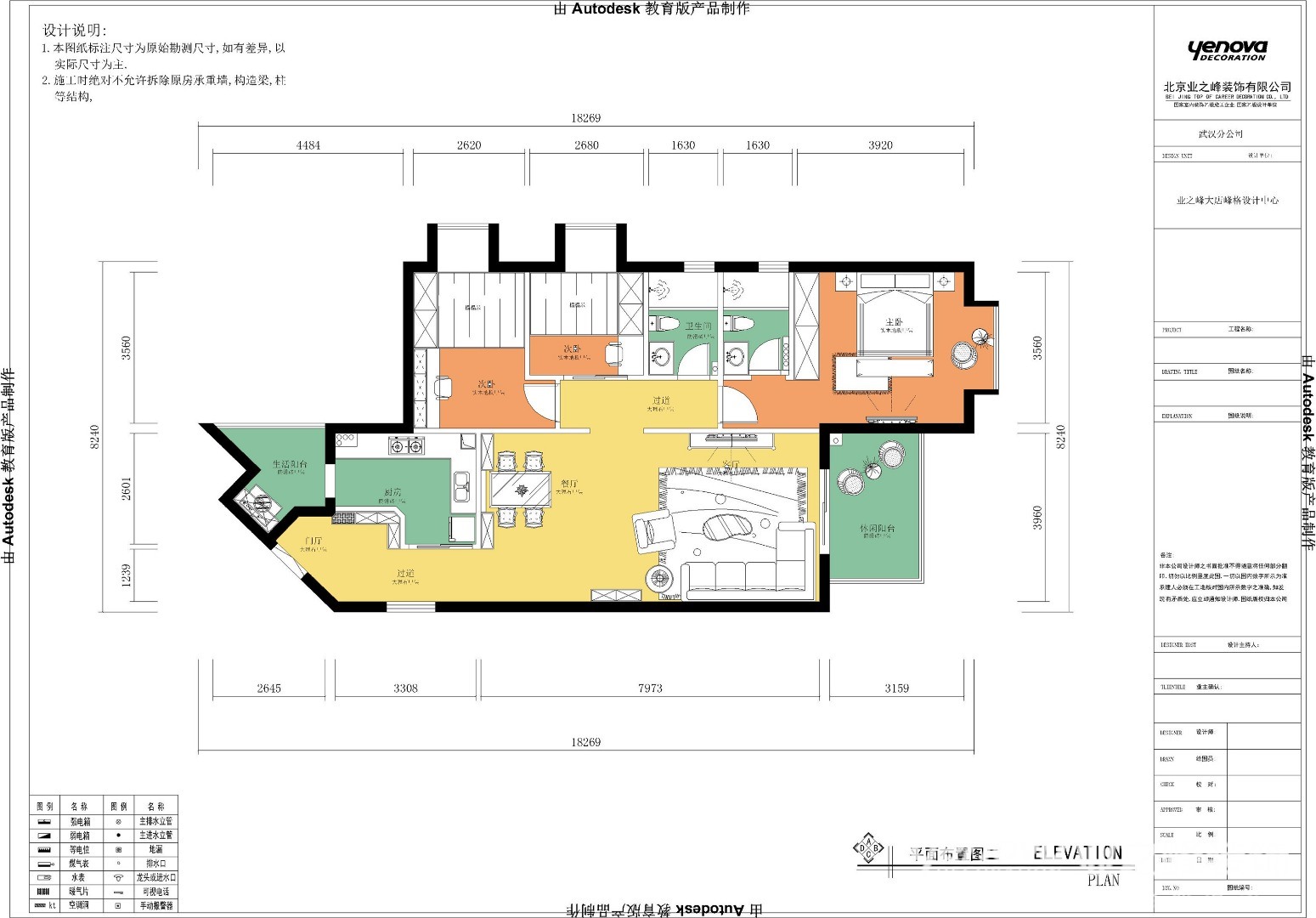
此小区为三房两厅两卫一厨的高端江景房,为南北朝向;此户型具备以下几个优点;第一各区域功能分区明显,房间利用率较高,第二靠近江边,空气流通很顺畅,且光线充裕,给业主舒适的感受,第三每个房间都带飘窗,无形中增大了房间面积,且每个房间光线很充裕,很适宜居住。但是此户型也有以下几个缺点;第一进门门厅就是异形,给人很突兀的感觉,第二厨房光线很差,几乎看不到光线,且厨房后的小阳台也是异形,第三,这三个房间除去主卧外,剩下两个房间的太小。
现如今,针对这个户型的优缺点,做了两个不同的方案以满足客户的需求。购买此户型的客户群体,我们大致可以分为三口之家和三代同堂这两大类群体。根据三口之家的需求,第一我们把主卧卫生间改为衣帽间的形式,大大增加了房间的储藏面积,让主卧显得更加大气,时尚。第二,打掉次卧与客房这面墙,往外挪动830mm,大大增加次卧的面积,使其能摆下1.5*2米的床和600mm的衣柜,并且还能摆下一个书桌,使次卧功能齐全。第三,针对厨房光线不足的缺点,打掉厨房的小阳台,一方面增大厨房的面积。而且可以将厨房阳台的光线引入厨房来,改善其光线不足的缺点。根据此方案,我们得出的半包预算是8万8.主材预算是13万3.根据三代同堂的客户群体需求,我们做如下改变,第一,三代同堂因人口较多,我们保留两个卫生间和这三个房间,并把这三个房间都做成能睡觉休息的地方,但目前三个房间都较小,所以我们将把老人房和小孩房都做成榻榻米的形式,节约房间空间,让这两个房间都具备休息,储藏,学习的地方。第二,针对此户型进门的异形问题,我们打掉厨房这面墙,重新砌墙,扩大进门门厅的面积,使其更开阔,大气。第三,因此小区位于江边,我们将客厅阳台作为观景阳台,把洗衣机放在厨房后的小阳台,让客厅阳台完整的保留下来,放下休闲桌椅,供一家人观景。根据此方案,我们得出的半包预算是9万5,主材预算是16













京公安网备11010502040911