180㎡四居现代简约风格陕西师范家属院
发布时间:
2016年09月22日
小区:陕西师范家属院 面积:180㎡ 户型:四居 风格:现代简约风格
设计说明
简欧风各以其典雅、自然、高贵的气质见长,特别是在生活元素多元化的今天,欧式风格的家居设计更以其浪漫的情调备受青睐。生活在繁杂多变的世界里已是烦扰不休,而简单、自然的生活空间却能让人身心舒畅,感到宁静和安逸;藉着室内空间的解构和重组,便可以满足人们对悠然自得的生活的向往和追求,让他们在纷扰的现实生活中找到平衡,缔造出一个令人心驰神往的写意空间。
欧式风格适用于大户型与大空间,在中等或较小的空间里就容易给人造成一种压抑的感觉。 欧式风格的特征是强调线形流动的变化,将室内雕刻工艺集中在装饰和陈设艺术上,色彩华丽且用暖色调加以协调,变形的直线与曲线相互作用以及猫脚家具与装饰工艺手段的运用,构成室内华美厚重的气氛。它在形式上以浪漫主义为基础,常用大理石、华丽多彩的织物、精美的地毯、多姿曲线的家具,让室内显示出豪华、富丽的特点,充满强烈的动感效果。如果说古典欧式风格线条复杂、色彩低沉,而简欧风格则在古典欧式风格的基础上,以简约的线条代替复杂的花纹,采用更为明快清新的颜色,既保留了古典欧式的典雅与豪华,又更适应现代生活的休闲与舒适。无论是古典欧式风格还是简欧风格,其设计哲学都是追求深沉里显露尊贵、典雅中浸透豪华的设计表现,并期望这种表现能够完整地体现出居住人追求品质、典雅生活,视生活为艺术的人生态度。
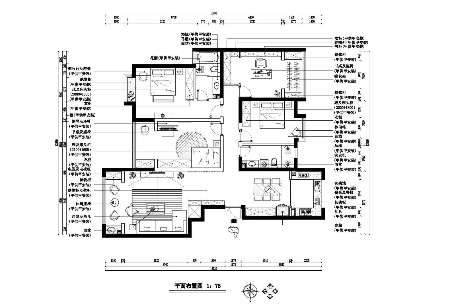
户型图

客厅


餐厅




京公安网备11010502040911