151㎡四居新中式风格世玺
发布时间:
2016年09月01日
小区:世玺 面积:151㎡ 户型:四居 风格:新中式风格
设计说明
低调奢华,也就是让人一看不会觉得过于繁华,但是有一定的身份底蕴在里面。而中式风格却一直以来被认为是过于繁琐的东西。如何在中式中突显出低奢感觉,而抛弃中式的繁重感觉,那么这套新中式的设计就完全的展现出来。首先在造型上基本上使用简约风格的造型处理,然后在电视墙和地砖上的砖则考虑中性色带花纹的仿石材砖,这样能有效的提高档次度。在木作方面尽量选用黑檀,其特有的颜色和纹路感,正好和奶咖色的墙面呼应且具有一定的层次,而这种颜色和造型的搭配却能带给人们低奢的感觉。搭配现代感觉强烈的黑镜,更能把现代的时尚感觉融入其中。在配饰和家具选择上则使用线条流畅的新中式家具,这样把中式的元素和文化底蕴也能带入其中。
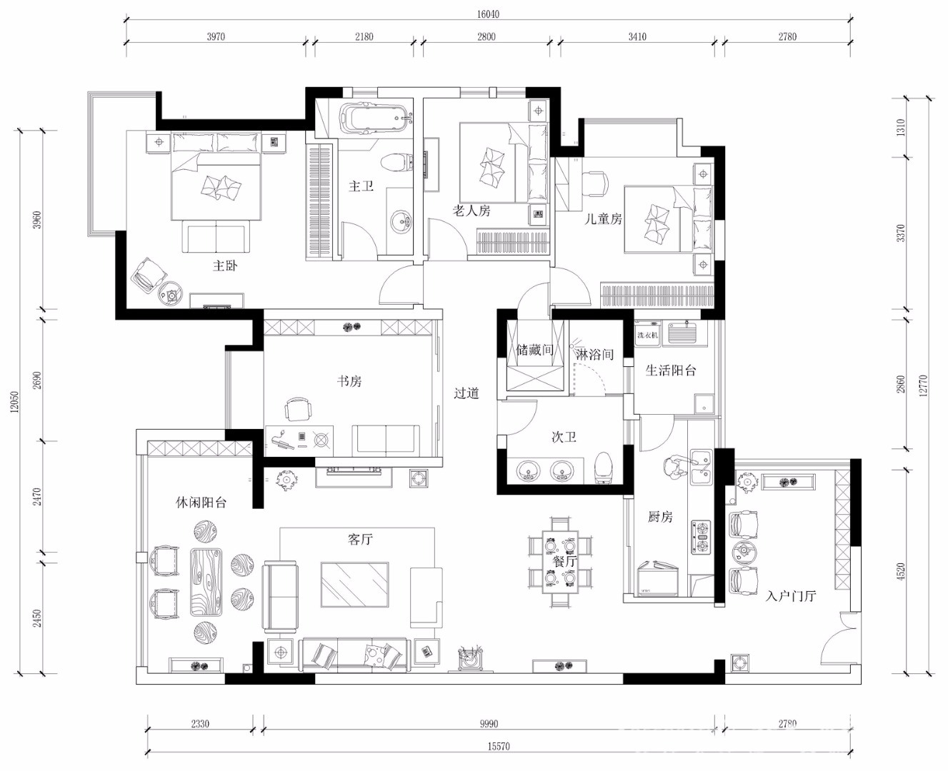
户型图

客厅


卧室






京公安网备11010502040911