74㎡二居简欧风格中海金沙府
发布时间:
2016年09月01日
小区:中海金沙府 面积:74㎡ 户型:二居 风格:简欧风格
设计说明
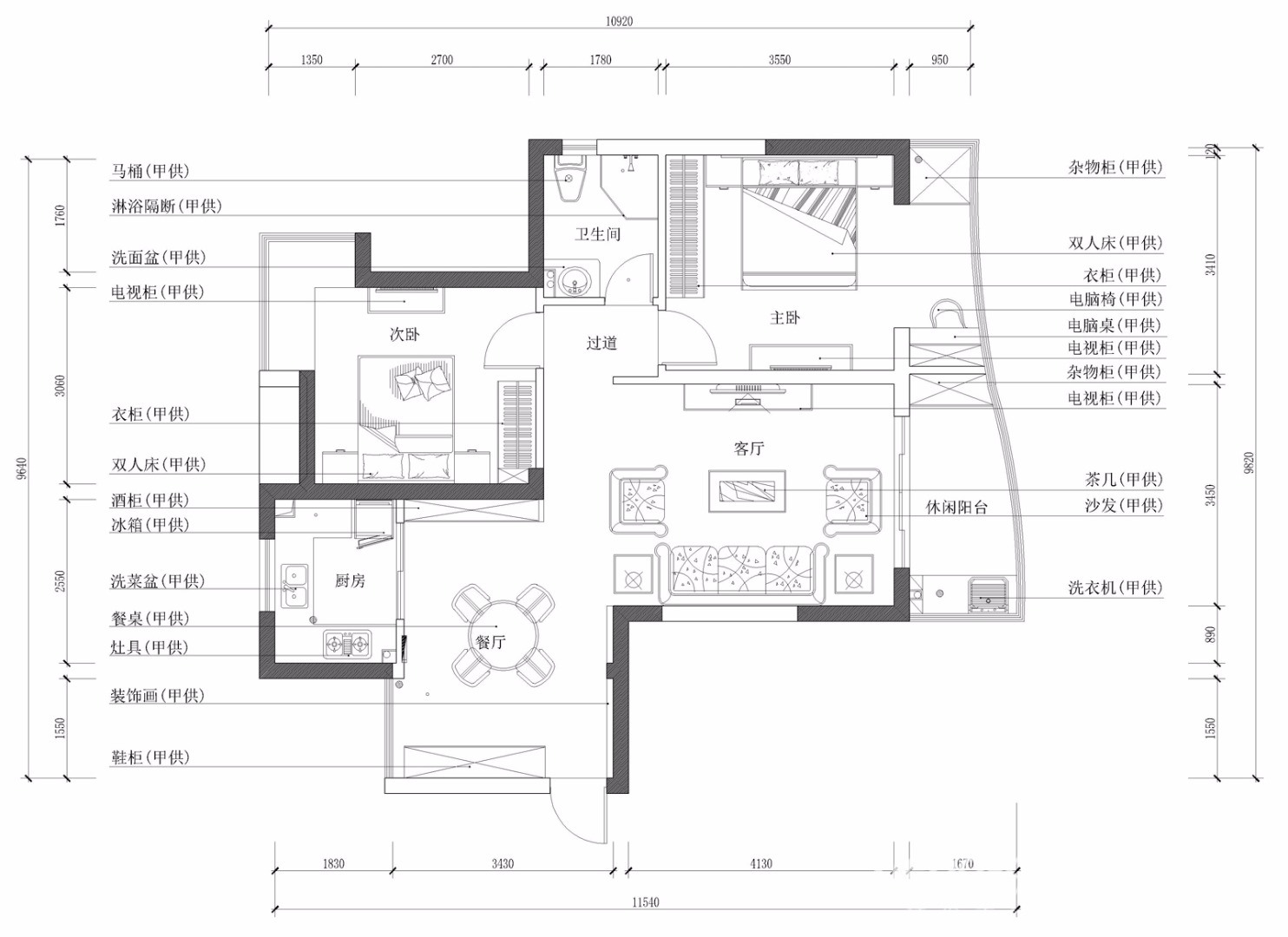
这是一退休职工和朋友一起在同一小区为自己购买的养老房。客户喜欢深色一点的欧式,于是选择了深色调的简欧风格。同样朋友的房子有共同的问题则是入户对卫生间门。本案把入户花园和餐厅并为一起,把洗衣机放在了大阳台不显眼的位置。更改了卫生间门的位置,使整个空间更为合理。
户型图

客厅


餐厅

玄关





京公安网备11010502040911