79㎡二居新中式风格棠湖帝景
发布时间:
2016年09月01日
小区:棠湖帝景 面积:79㎡ 户型:二居 风格:新中式风格
设计说明
这是一退休职工和朋友一起在同一小区为自己购买的养老房。由于房子在都江堰,客户选择了和城市能融入的简中风格。入户做了一个月牙门,主要处理了入户对卫生间门的尴尬。
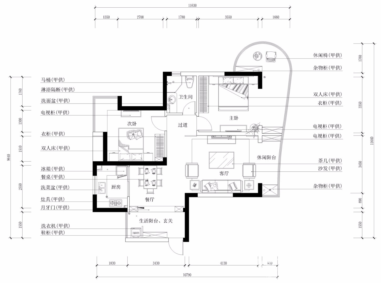
户型图

餐厅

卧室

客厅


这是一退休职工和朋友一起在同一小区为自己购买的养老房。由于房子在都江堰,客户选择了和城市能融入的简中风格。入户做了一个月牙门,主要处理了入户对卫生间门的尴尬。




