142㎡三居现代简约风格南湖一号
发布时间:
2014年09月16日
小区:南湖一号 面积:142㎡ 户型:三居 风格:现代简约风格
设计说明
低调的色彩,精美考究的材质,精致的壁画,极具艺术品位的沙发背景。无一不在像我们倾诉着这个精致的简欧生活空间,吸取和沉淀了多种经典设计风格,将繁复的元素抽象化,从简洁、理性、清晰的变化中体现设计感。
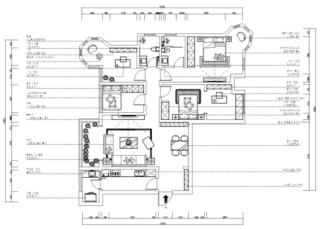
户型图

客厅



低调的色彩,精美考究的材质,精致的壁画,极具艺术品位的沙发背景。无一不在像我们倾诉着这个精致的简欧生活空间,吸取和沉淀了多种经典设计风格,将繁复的元素抽象化,从简洁、理性、清晰的变化中体现设计感。



