0㎡二居新古典风格高科尚都
发布时间:
2014年09月16日
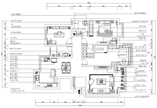
小区:高科尚都 面积:0㎡ 户型:二居 风格:新古典风格
设计说明
客户年龄不大,追求安静舒适的生活,整体色调采用暖色温馨的色调,经过多次沟通后厨房采用开放式厨房,客厅和餐厅顶部采用直线和矩形的设计手法,形式统一,为了增加原顶的层次感,局部应用线条拉升层高,客餐厅连为一体,呈现出更加丰富的效果。
户型图

客厅


餐厅





京公安网备11010502040911