158㎡二居新中式风格永和坊
发布时间:
2014年09月16日
小区:永和坊 面积:158㎡ 户型:二居 风格:新中式风格
设计说明
细心地为主人打造了具备休闲感但又彰显品位的时尚空间,实木创造出的线条和质感极佳的精品家具是主要的设计元素。
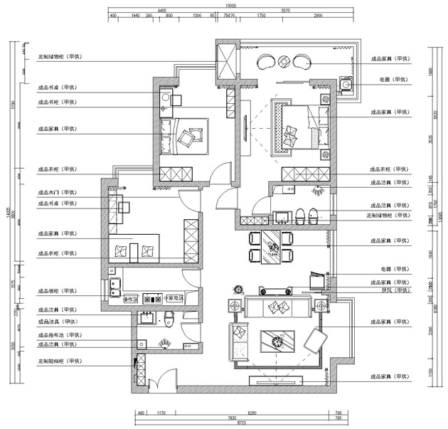
户型图

客厅


玄关

卧室

细心地为主人打造了具备休闲感但又彰显品位的时尚空间,实木创造出的线条和质感极佳的精品家具是主要的设计元素。




