230㎡复式美式风格海蓝城
发布时间:
2014年09月16日
小区:海蓝城 面积:230㎡ 户型:复式 风格:美式风格
设计说明
简约美式风格沿袭古典欧式风格的主元素,融入了现代的生活元素。此案例中居室有的不只是豪华大气,更多的是惬意和浪漫。设计风格从整体到局部、从空间到室内陈设塑造,精雕细琢,给人一丝不苟的印象。一方面保留了材质、色彩的大致感受,可以领悟到欧洲传统的历史痕迹与深厚的文化底蕴,同时又摒弃了过于复杂的肌理和装饰,简化了线条,通过完美的典线,精益求精的细节处理,带给家人数不尽的舒畅触感。
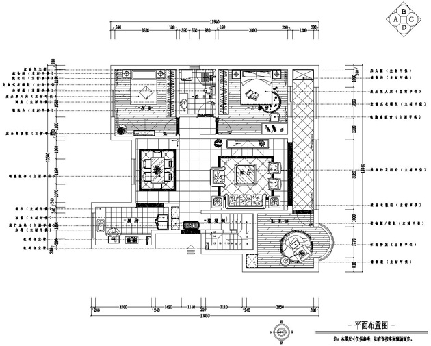
户型图

客厅




卧室

楼梯

餐厅





京公安网备11010502040911