130㎡平层现代简约风格海蓝城
发布时间:
2014年09月16日
小区:海蓝城 面积:130㎡ 户型:平层 风格:现代简约风格
设计说明
此居室为现代简约,整体采用中性色调.稳重.大气.却不失品味.线条简洁流畅简约但并不简单,注重大小色块之间的组合,地域性的后期配饰融入其设计风格之中,给人一种现代,时尚,大气的感觉。
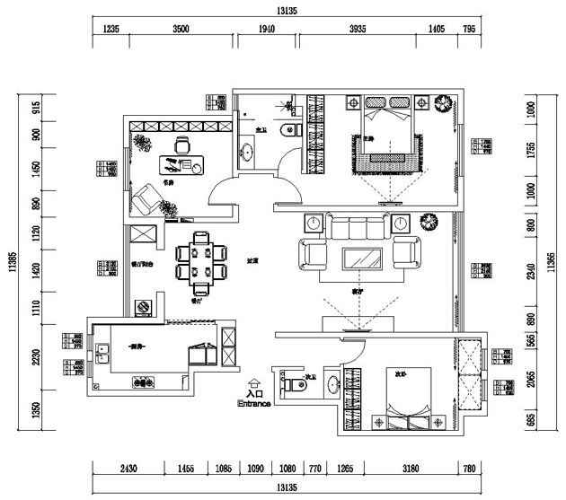
户型图

客厅



餐厅

此居室为现代简约,整体采用中性色调.稳重.大气.却不失品味.线条简洁流畅简约但并不简单,注重大小色块之间的组合,地域性的后期配饰融入其设计风格之中,给人一种现代,时尚,大气的感觉。




