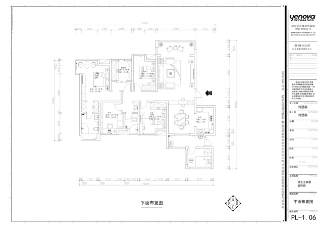
180㎡四居新中式风格美的林城时代
发布时间:
2015年09月29日
小区:美的林城时代 面积:180㎡ 户型:四居 风格:新中式风格
设计说明
中式风格的特点,是在室内布置、线形、色调以及家具、陈设的造型等方面,吸取传统装饰“形”、“神”的特征,以传统文化内涵为设计元素,革除传统家具的弊端,去掉多余的雕刻,糅合现代西式家居的舒适,根据不同户型的居室,采取不同的布置
客厅



书房





京公安网备11010502040911