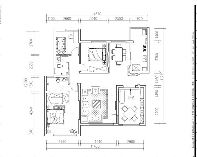
130㎡三居现代简约风格兴隆珠江湾畔
发布时间:
2015年09月29日
小区:兴隆珠江湾畔 面积:130㎡ 户型:三居 风格:现代简约风格
设计说明
现代风格家居重视功能和空间组织,注意发挥结构构成本身的形式美,造型简洁,反对多余装饰,崇尚合理的构成工艺,尊重材料的性能,讲究材料自身的质地和色彩的配置效果,发展了非传统的以功能布局为依据的不对称的构图手法。
客厅


餐厅


现代风格家居重视功能和空间组织,注意发挥结构构成本身的形式美,造型简洁,反对多余装饰,崇尚合理的构成工艺,尊重材料的性能,讲究材料自身的质地和色彩的配置效果,发展了非传统的以功能布局为依据的不对称的构图手法。



