165㎡四居新中式风格曲江观山悦
发布时间:
2015年11月06日
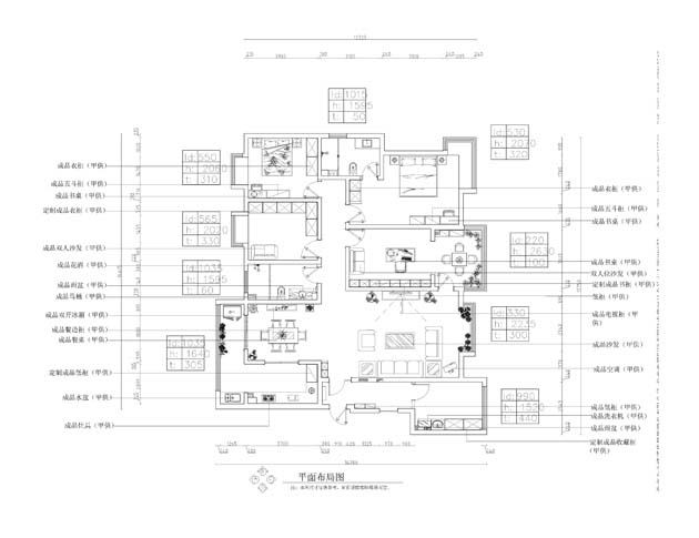
小区:曲江观山悦 面积:165㎡ 户型:四居 风格:新中式风格
设计说明
方案在设计上划分为三室两厅,该风格以符合现代人生活习惯的室内居住空间现实舒适的居住生活。本案的色彩搭配是长城灰、白色、黄色和木原色打造新中式的气氛,还加了大理石、玻璃、灯带等现代材料,使空间又包含了现代生活气息,光源上舍弃了烛光环境,实用简洁的几何灯具。大量采用自然光,在家具配置上主要取材于自然,以木材为主,在合适的空间使用合适的材料。
客厅面积较大采用居中对称的摆放方式。客厅是主人品位的象征,体现主人的品味,也是较有娱乐的场所。是一家4口饭后闲暇休闲娱乐的场所。他是经过深思熟虑后经过创新得出的设计和思路的延展。墙面大面积的使用了中式色彩的壁纸配合经过提炼的中式线条,使新中式不再是遥远的过去,而是鲜活时尚的品味象征。
新中式风格不是纯粹的传统文化元素的假单叠加,而是通过对传统的认识,注入中式的风雅意境,从而使空间散发清雅含蓄,端庄典雅。
客厅





厨房

书房

餐厅





京公安网备11010502040911