270㎡五居新古典风格曲江公馆和园
发布时间:
2015年11月06日
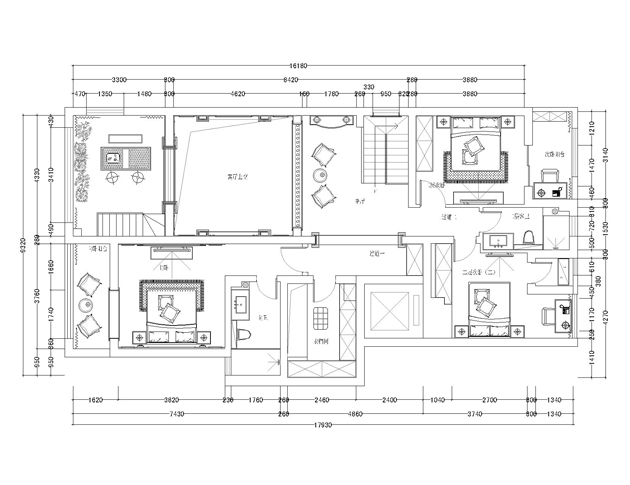
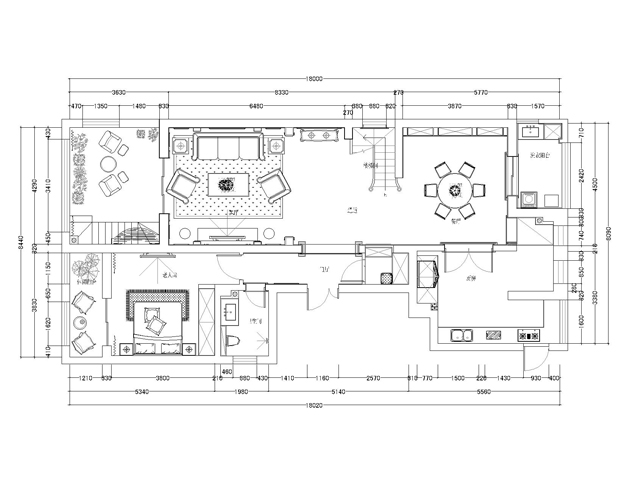
小区:曲江公馆和园 面积:270㎡ 户型:五居 风格:新古典风格
设计说明
本案的整体设计体现低调奢华的复古,多处使用结构完整的深色墙板设计,结合暖色调墙纸的运用与家具的材质搭配相得益彰,客厅主墙面的石材造型使其整个空间更加丰满、引人入胜。过道处的改造使得空间更富有层次感,及观赏性,不再狭窄且单调。车边镜面的使用不仅仅使原本稍显窄的餐厅有了空间衍生感而且还与木制作及家具的配色相一致,让空间更加灵动起来。
客厅







卧室

楼梯

餐厅





京公安网备11010502040911