219㎡新中式风格金辉融侨城
发布时间:
2015年12月25日
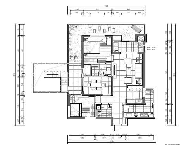
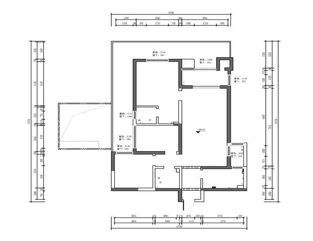
小区:金辉融侨城 面积:219㎡ 户型: 风格:新中式风格
设计说明
本案采用了一些中式风格中常用的设计元素,如青砖、木质雕花、古画、荷叶灯、祥云图案、鱼影以及中国园林的经典元素组合而成。感谢业主W**对我们的信任,有了客户对我们的信任,才可以让我们将每个设计环节中的灵感得以实现。
客厅






卧室

餐厅

本案采用了一些中式风格中常用的设计元素,如青砖、木质雕花、古画、荷叶灯、祥云图案、鱼影以及中国园林的经典元素组合而成。感谢业主W**对我们的信任,有了客户对我们的信任,才可以让我们将每个设计环节中的灵感得以实现。







