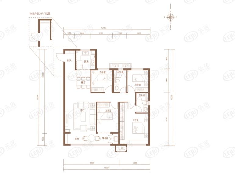
140㎡四居现代简约风格保利和光尘樾
发布时间:
2025年11月06日
小区:保利和光尘樾 面积:140㎡ 户型:四居 风格:现代简约风格
设计说明
电视背景墙采用深灰色柜体,简洁大气,内嵌式电视与开放式置物架,兼具实用与美观。落地窗搭配垂直百叶帘,光线柔和。单椅与落地灯构成惬意角落。墙面艺术装饰增添个性。整体空间通过材质的对比与色彩的协调,营造出简约而不失格调,舒适且具现代感的居住氛围。
户型图





京公安网备11010502040911