北京
【切换】
整屋案例
家居美图
实景案例
装修现场
装修攻略
无数据
搜索
010-84934479
扫码快速拨号 >
扫码快速拨号
首页
效果图
设计师
装修现场
装修攻略
品质保障
了解业之峰
当前位置:
首页
装修图库
案例相册
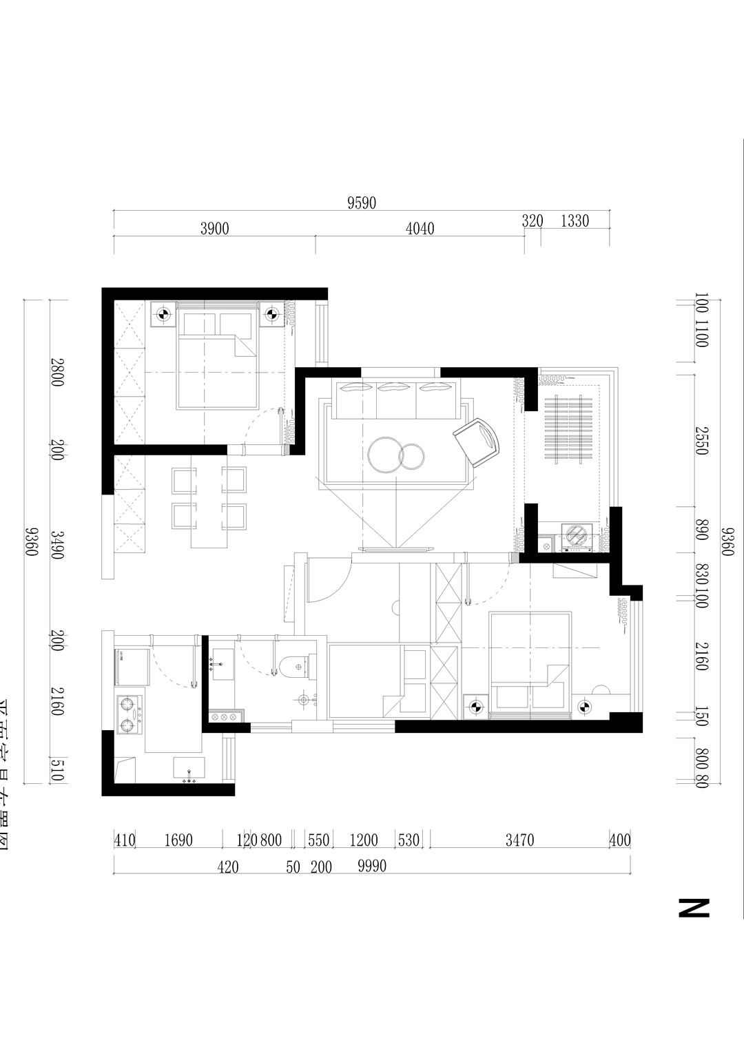
93㎡二居现代简约风格曲江美好时光
发布时间: 2022年03月17日
小区:曲江美好时光
面积:93㎡
户型:二居
风格:现代简约风格
设计说明
效果使用了黑白灰的主色调,以简洁的造型、完美的细节,营 造出时尚前卫的感觉。使用橙色椅子,挂画,在搭配一些绿色 植物为衬托,使居室充满惬意、轻松气氛。
户型图
厨房
卫生间
卧室
客厅
玄关
设计说明
户型图
厨房
卫生间
卧室
客厅
玄关
本案设计师
业之峰专业设计师
免费咨询
我家装成这样多少钱?
㎡
获取报价
相关案例推荐
90㎡二居现代简约风格兴隆滨河苑
查看详情
71㎡二居现代简约风格武汉大学信息学部教工宿舍
查看详情
85㎡二居现代简约风格福星惠誉东湖城
查看详情
75㎡二居现代简约风格南山樾府
查看详情
80㎡二居现代简约风格望城国际公馆
查看详情
62㎡二居现代简约风格和瑞园
查看详情
90㎡二居现代简约风格恒基碧翠锦华
查看详情
135㎡二居现代简约风格金色港湾
查看详情
66㎡二居现代简约风格天物郁江溪岸
查看详情
110㎡二居现代简约风格九号公馆
查看详情
77㎡二居现代简约风格交通厅家属院
查看详情
78㎡二居现代简约风格汉悦府朗境
查看详情
85㎡二居现代简约风格长江鑫都
查看详情
100㎡二居现代简约风格晶珠广场
查看详情
85㎡二居现代简约风格保利公园九里
查看详情
49㎡二居现代简约风格高发城驰苑
查看详情
85㎡二居现代简约风格新西钢小区
查看详情
88㎡二居现代简约风格80年代
查看详情
90㎡二居现代简约风格东湖楚天府
查看详情
83㎡二居现代简约风格石桥花园
查看详情
展开
报价计算器
免费量房
免费设计
回到顶部