142㎡三居轻奢风格康桥悦蓉园
发布时间:
2022年03月17日
小区:康桥悦蓉园 面积:142㎡ 户型:三居 风格:轻奢风格
设计说明
现代轻奢风格是以极致简约风格为基础,通过一些精致的软装
元素来凸显质感,同时也浓缩着意想不到的功能与细节,从而
彰显了一种高品质的生活方式。轻奢风格一般会选用带有高级
感的中性色来演绎一种“低调的奢华”,令空间质感更为饱满。
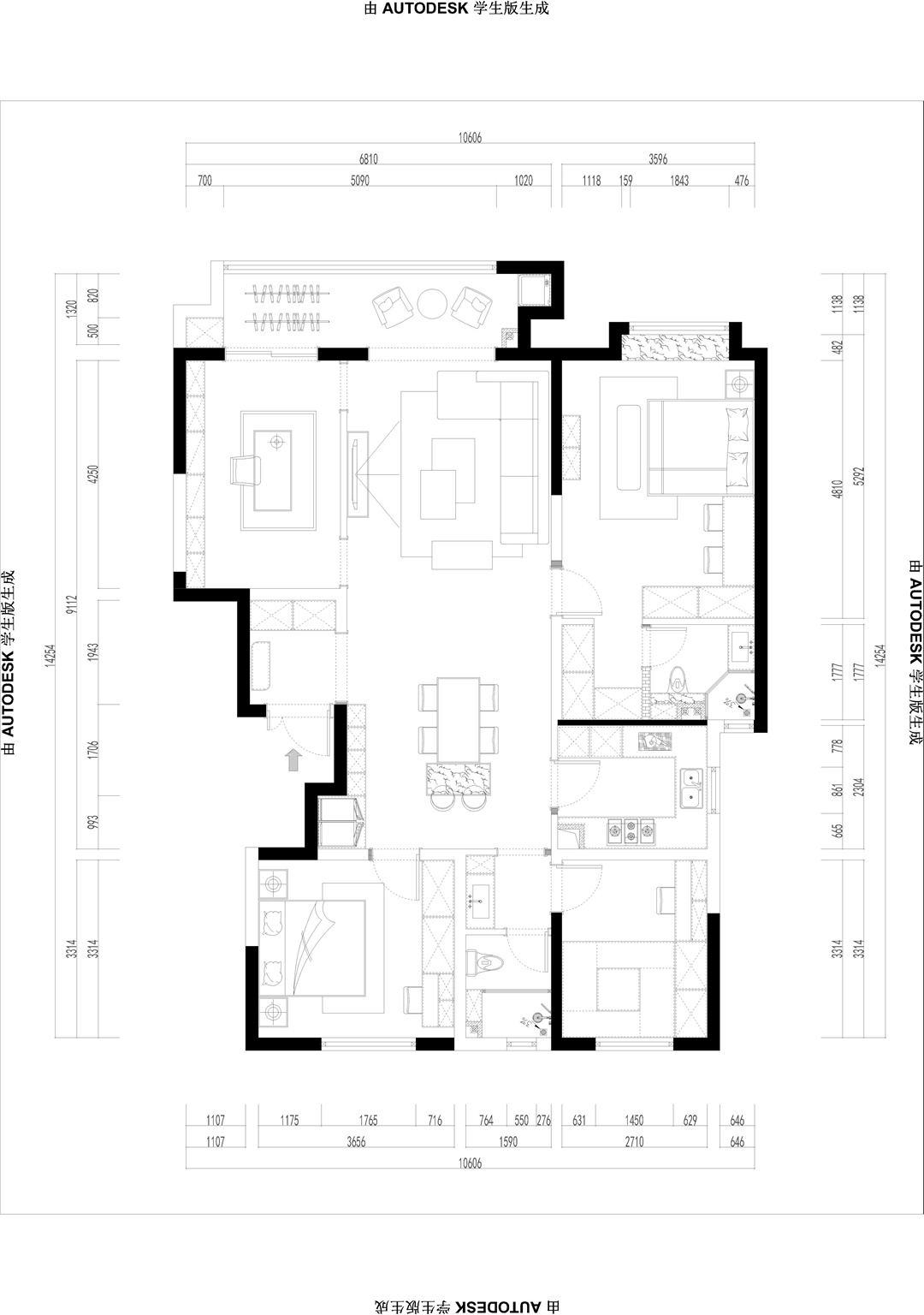
户型图


卧室

客厅






京公安网备11010502040911