45㎡二居现代简约风格星河9号
发布时间:
2021年10月20日
小区:星河9号 面积:45㎡ 户型:二居 风格:现代简约风格
设计说明
客厅、餐厅、书房、卧室,套内面积虽小,却五脏俱全。灰与紫在空间内碰撞、融合、延伸⋯作为点缀的橙黄让色彩瞬间有了层次;北欧风格的自然丰满在细节中一一体现:简练的线条随意地渲染出家最淳朴味道;造型独特的柜子将童话里的玩偶收纳其中;藤蔓植物从吊灯中垂吊而下;烘焙主题的装饰让厨房有了真实确切的幸福感。从地毯到家具、从地面到墙身,几何的切割与拼接无处不在;用色块解构空间,在最原始的材料中混入色彩,形成含蓄的花纹,让当代设计才能体现的舒适感在空间里慢慢发酵出来。
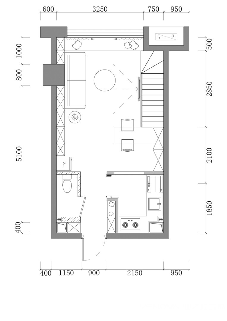
户型图

客厅



餐厅

卧室

厨房

书房





京公安网备11010502040911