330㎡四居新中式风格中央国际城
发布时间:
2021年10月19日
小区:中央国际城 面积:330㎡ 户型:四居 风格:新中式风格
设计说明
本方案采用中式的设计方案,客厅挂画后方摆放嵌入式书架增加储物空间,餐厅摆放的大型酒柜,增加储物面积,楼梯采用玻璃扶手简单大气,客厅后面壁布点缀整体色彩。
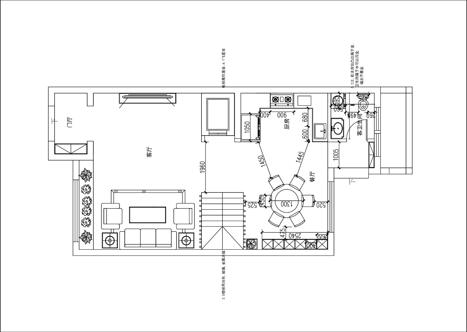
户型图

楼梯

客厅



玄关

本方案采用中式的设计方案,客厅挂画后方摆放嵌入式书架增加储物空间,餐厅摆放的大型酒柜,增加储物面积,楼梯采用玻璃扶手简单大气,客厅后面壁布点缀整体色彩。





