60㎡二居现代简约风格洛阳路
发布时间:
2021年08月26日
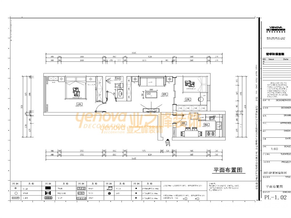
小区:洛阳路 面积:60㎡ 户型:二居 风格:现代简约风格
设计说明
本方案是围绕现代简约风格为主题,现在是一家两口人居住,后期还会要小孩,次卧作为后期的儿童房,主卧选择了与衣柜定制一体床头柜的形式。整体硬装色彩基调为暖色系,为了既能突出电视背景墙又不过于突兀,所以在色彩上选择浅蓝灰色。儿童房间里的色彩既想要高级又想要选择中性色彩,因为不确定未出生的宝宝是男孩还是女孩,所以选择了浅绿色;整体空间基调意为营造简单温暖大气的氛围,从而使室内宽敞明亮、线条和色彩单一而又不缺乏趣味,营造一种空间感和艺术感,其最突出强调的是设计的功能性和使用性。另外从整体空间布局上来说,重视室内空间的合理利用,强调室内布置按照功能区分的原则进行,家具布置与空间紧密结合,注重客户的真实内心需求,主张删减多余繁琐的附加装饰来满足客户对于现代生活的悠闲与舒适度的需求。
户型图

卧室


客厅








京公安网备11010502040911