136㎡三居现代简约风格翡翠国际·君悦湾
发布时间:
2021年07月28日
小区:翡翠国际·君悦湾 面积:136㎡ 户型:三居 风格:现代简约风格
设计说明
设计以高品质和简约为基础。设计简洁大方,时尚,前卫,优雅,给人温暖舒适的感觉。与每个人都熟悉的现代风格相比,它具有更多的品质和设计感;它揭示了生活的纯洁与纯洁,它融合了奢华与内涵的气质。
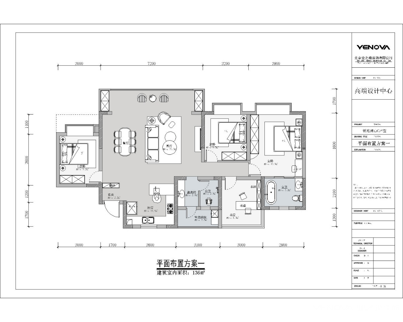
户型图

客厅






设计以高品质和简约为基础。设计简洁大方,时尚,前卫,优雅,给人温暖舒适的感觉。与每个人都熟悉的现代风格相比,它具有更多的品质和设计感;它揭示了生活的纯洁与纯洁,它融合了奢华与内涵的气质。






