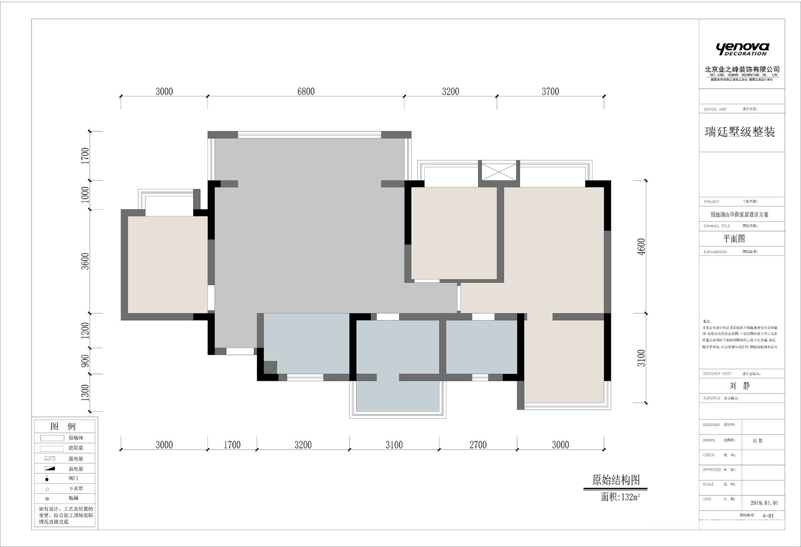
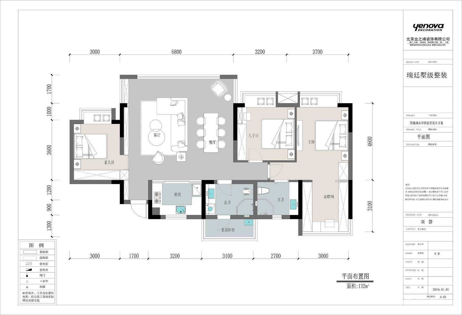
132㎡三居后现代风格领地澜山
发布时间:
2021年07月28日
小区:领地澜山 面积:132㎡ 户型:三居 风格:后现代风格
设计说明
采用黑白灰颜色,无疑给室内装饰艺术引入新意。 在配置上,白亮光系列家具,独特的光泽使家具倍感时尚,具有舒适与美观并存的享受。 黑色间配给人一种十分独特的醒目亮点。 灰色是黑白的过渡色。肩负着和偕自然角色,把黑与白反差缓冲了。在配饰上,我赞同你的选色构思,提出两点建议:1.黑色用到恰到之处,不宜太多,多了反而不独特。以白、灰为主。2.在采光好的情况下,地板、墙体采用浅灰,沙发采用中或深灰。大胆改变传统的白色墙体家装 。
现代简约风格所采用黑白灰颜色,无疑给室内装饰艺术引入新意。
在配置上,白亮光系列家具,独特的光泽使家具倍感时尚,具有舒适与美观并存的享受。
黑色间配给人一种十分独特的醒目亮点。
户型图

客厅





卧室






京公安网备11010502040911