133㎡三居现代简约风格幸福家园
发布时间:
2021年06月11日
小区:幸福家园 面积:133㎡ 户型:三居 风格:现代简约风格
设计说明
本方案在空间设计上为使空间更加开敞,设计师将客卫做干湿分离,浴室柜对面做鞋柜,满足了储物功能又不失美观,餐厅与厨房做分离,既改善了空间的狭长感又使餐厅内容更加丰富,满足功能和美观双重需求。客厅的设计简约大气、线条简练,摒弃一切繁琐和奢华,去掉零碎的空间划分,去掉堆砌的颜色和摆设,去掉繁复设计的家具,整个空间看起来,简而不繁。
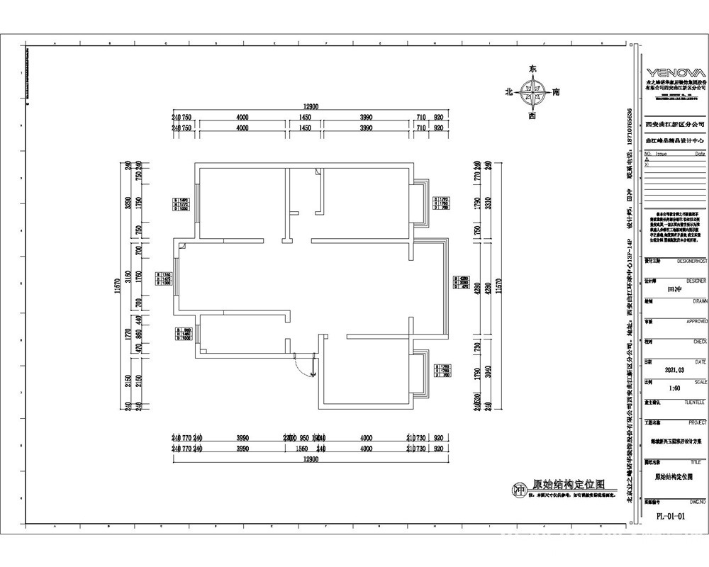
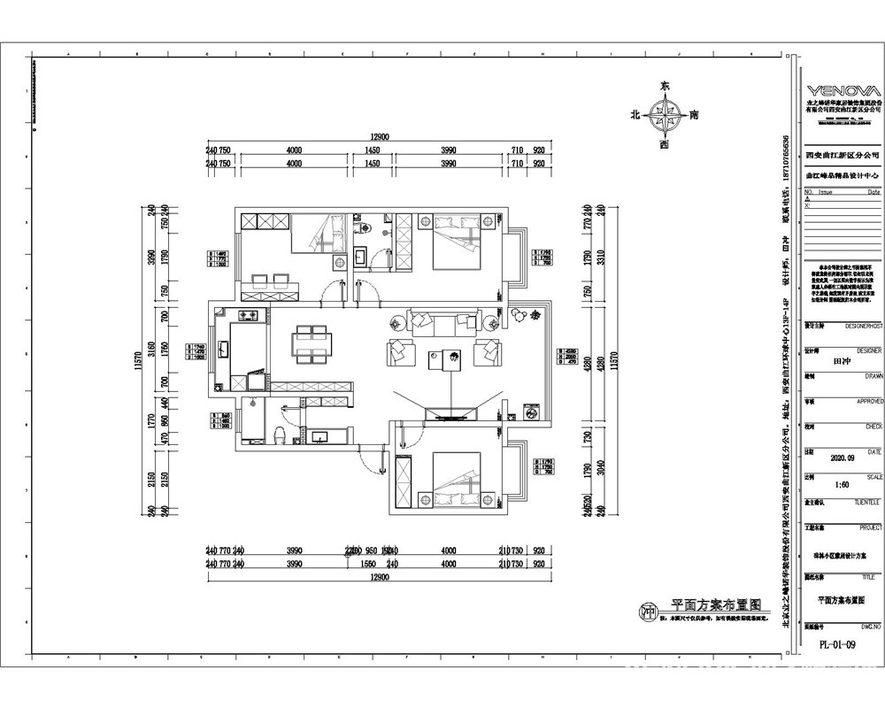
户型图

客厅





卧室


卫生间





京公安网备11010502040911