197㎡四居美式风格新兴玉园
发布时间:
2021年06月11日
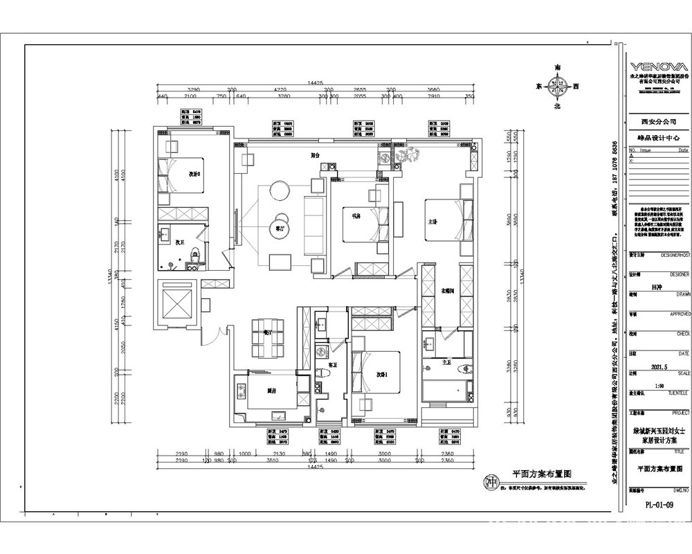
小区:新兴玉园 面积:197㎡ 户型:四居 风格:美式风格
设计说明
客户4口之家,一儿一女,老人偶尔来住,所以三个卧室保留,同时把书房改成卧室,老人来了有自己的卧室,考虑两个小孩房的学习,储物,在过道改储物柜,美观又实用,客卫做干湿分离,实用又方便。客厅搭配整体以简约灰、白、为主,通体大地砖采用偏冷,白色调又显得空间格外宁静,安逸。该空间整个电视背景墙与客厅吊顶相呼应,空间内简洁明朗。
户型图

儿童房


餐厅

客厅



卧室







京公安网备11010502040911